海宁鸿樾府户型

鸿翔中南·鸿樾府4室2厅2卫的户型
图片尺寸760x880
嘉兴市海宁市鸿翔中南鸿樾府
图片尺寸800x600
鸿翔鸿樾府户型设计怎么样小区环境好不好
图片尺寸1200x1200
鸿翔鸿樾府户型设计怎么样小区环境好不好
图片尺寸1200x1249
g5户型 120
图片尺寸800x600
鸿翔中南·鸿樾府4室2厅2卫的户型
图片尺寸760x880
华鸿鸿樾府楼盘户型
图片尺寸900x1350
锦绣海樾府c户型112户型
图片尺寸900x1706
g4户型 110
图片尺寸800x600
华鸿·鸿樾府户型图_阜阳在线房产
图片尺寸800x1085
鸿翔中南鸿樾府户型图
图片尺寸500x553
鸿翔传承樾府户型图介绍
图片尺寸1600x811
鸿翔中南·鸿樾府4室2厅2卫的户型
图片尺寸1093x820
海樾府楼盘户型
图片尺寸600x900
海樾府楼盘户型
图片尺寸600x900
鸿翔传承樾府户型图介绍
图片尺寸1600x1210
鸿翔东望樾府小区户型好不好鸿翔东望樾府户型图
图片尺寸1500x1192
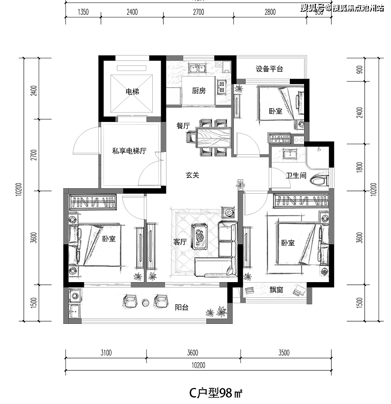
c户型98㎡改造前当然,面对时下的风潮,可能有些人对只有一个卫生间略
图片尺寸796x822
120户型
图片尺寸4053x4772
78项目效果图"凤樾府"首期10万起 南向凤依湖建筑面积约92-132㎡三
图片尺寸930x1319