海门交通规划2025

织密农村公路"幸福网" 绘就乡村振兴新蓝图
图片尺寸1269x897
南通海门区2025年发展规划:交通,产业与生态齐头并进
图片尺寸640x472
织密农村公路"幸福网" 绘就乡村振兴新蓝图
图片尺寸1269x897
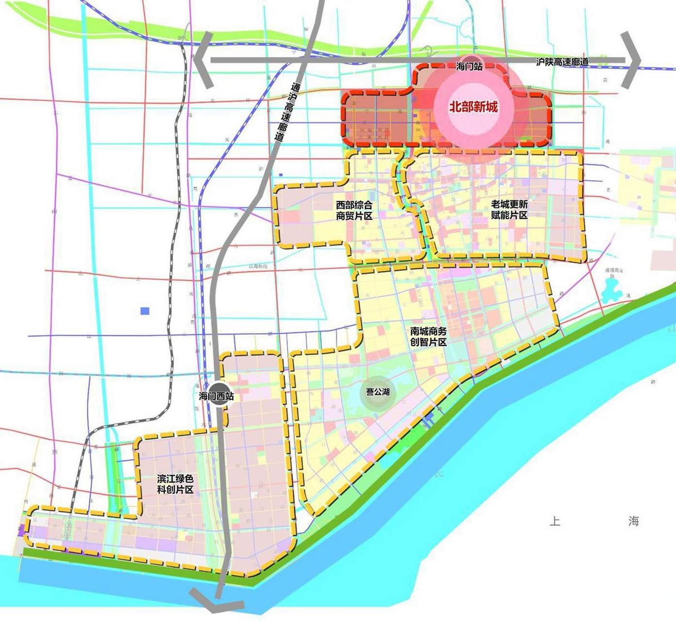
,城市空间格局,城区布局十四五规划南通
图片尺寸1393x1280
《海门区新能源汽车充换电基础设施布局规划
图片尺寸554x389
,城市空间格局,城区布局十四五规划南通
图片尺寸973x1280
,城市空间格局,城区布局十四五规划南通
图片尺寸1459x1280
刚刚,海门2025施教区公布!和去年有哪些变化?我们制作了
图片尺寸4096x4072
,城市空间格局,城区布局十四五规划南通
图片尺寸1537x1280
通东之眼 海门北站 长三角枢纽新格局下的地域优势分析 梦达视觉
图片尺寸660x466
南通海门区2025年发展规划:交通,产业与生态齐头并进
图片尺寸955x474
图片尺寸2031x1437
海门快速路规划新消息
图片尺寸660x439
新时代,海门有何新发展思路?胸怀长三角,博弈江海区
图片尺寸1865x1280
海门经济技术开发区
图片尺寸2667x1500
海门经济技术开发区
图片尺寸2667x1500
图片尺寸1284x2530
《海门区中心城区f3单元c2-05,c2-06,c2-12地块控制性详细规划调整》
图片尺寸4963x3508
海门区多处规划调整,涉及摩天大楼,cbd等重要项目!
图片尺寸1136x817
《海门区中心城区d3单元a-01,a-02,d-01街坊控制性详细规划调整》批前
图片尺寸4963x3508