渗井示意图

渗井
图片尺寸644x433
510排水工程之渗井,定额,清单均没有相关项怎么办?
图片尺寸640x736
探讨: mark>海绵 /mark> mark>城市 /mark>雨水渗井系统建设关键问题
图片尺寸532x501
渗井污染中国未来将无地下水可用危害到底有多大
图片尺寸508x419
渗水井怎么建
图片尺寸700x400
渗水井怎么建
图片尺寸700x400![[节点详图]砖砌渗井图](https://i.ecywang.com/upload/1/img0.baidu.com/it/u=3037337986,325154916&fm=253&fmt=auto&app=138&f=JPEG?w=500&h=369)
[节点详图]砖砌渗井图
图片尺寸886x653
预制式渗井
图片尺寸1405x1563
块石砌渗井图
图片尺寸872x643
块石砌渗井详图
图片尺寸345x271
雨水渗井的增加 基于leed铂金江示范街区的要求, 街区内的雨水必须
图片尺寸1080x810
砖砌渗井图
图片尺寸700x500
渗管 渗渠 渗井节点大样图(海绵城市节点)
图片尺寸818x488
渗井结构与布置实例
图片尺寸560x393
渗井
图片尺寸155x216
高分子材料管状渗井及施工方法
图片尺寸870x1000
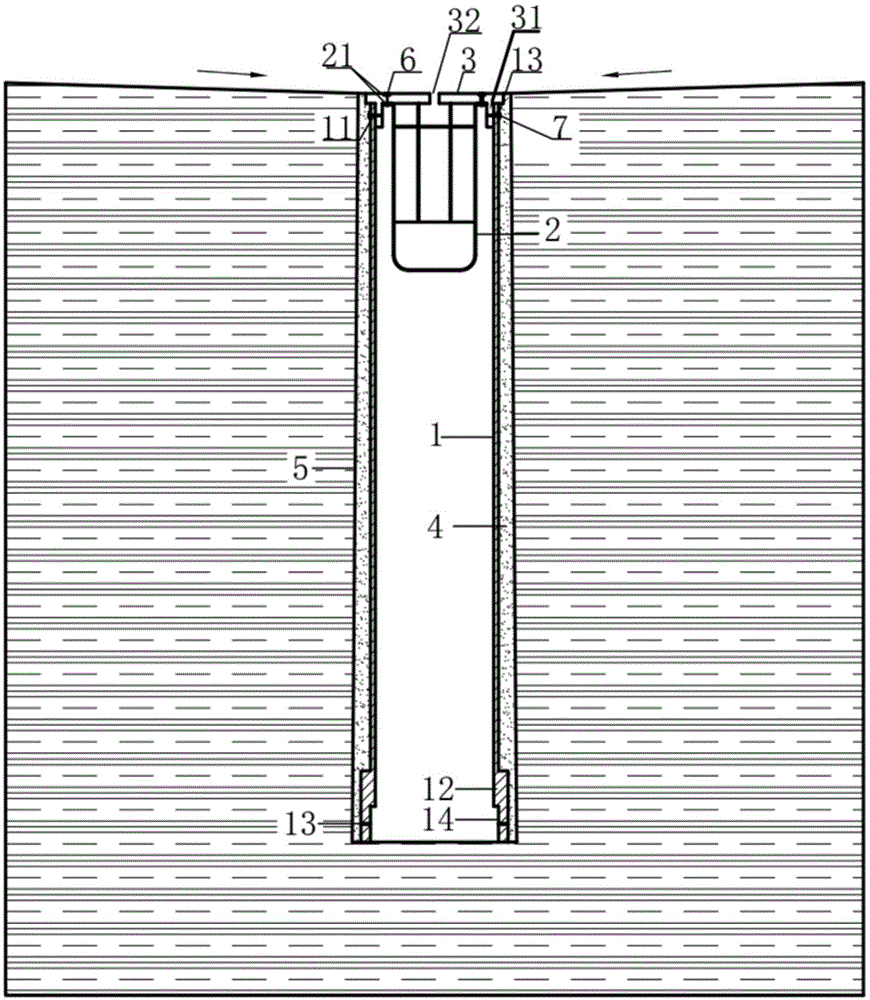
一种适用于海绵城市建设的砂石渗井
图片尺寸1640x1620
一级建造师管理与实务复习要点:渗井相关问题
图片尺寸259x241
砖 砌 渗 井 图
图片尺寸648x473
在农村打水井,老人常说"阴河"水抽不完,真有"阴河"吗?
图片尺寸640x459