滨融府户型图

申花滨融府4室2厅
图片尺寸2000x1500
申花滨融府4室2厅
图片尺寸2000x1500
b户型:139平方米,四房两厅两卫.
图片尺寸2000x2667
滨融府/杭州融创滨江滨融府怎么样(房价 户型图)-杭州看房网
图片尺寸2127x3367
大平层来袭
图片尺寸1045x784
滨融府 纯边套 双卫格局 精装修 南向采光好 中间
图片尺寸1152x865
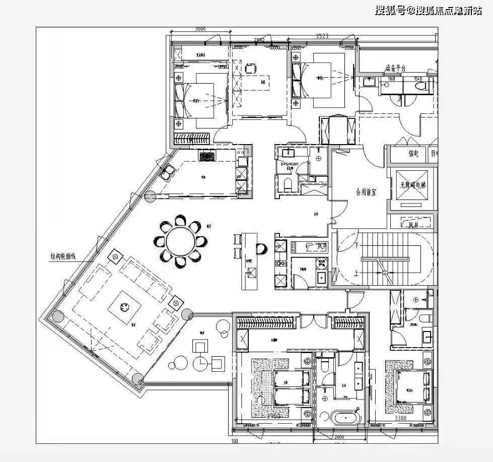
滨融府168方c户型
图片尺寸900x1425
c户型:168平方米,四房两厅三卫.
图片尺寸2000x2667
滨融府/杭州融创滨江滨融府怎么样(房价 户型图)-杭州看房网
图片尺寸2127x3367
【滨融府_佛山滨融府楼盘】房价,户型,开盘时间详情-佛山贝壳新房
图片尺寸690x517
杭州拱墅和睦滨融府和睦地铁口滨融府 3室2厅3卫 1
图片尺寸600x450
滨江滨融府售楼处电话:400-8060-330根据不同的家庭
图片尺寸740x835
小名叫圆明园的滨融府好像快开了住宅还不错但是这个
图片尺寸1000x1333
杭州拱墅和睦滨融府申花豪宅大悦城城西银泰滨融府横厅
图片尺寸600x450
杭州滨融府售楼处电话|地址|开盘价格|楼盘最新详情
图片尺寸979x917
小名叫圆明园的滨融府好像快开了住宅还不错但是这个
图片尺寸1000x1333
和品最低总价仅需323万对决滨融府你怎么选
图片尺寸400x600
大运桥西府户型类别:3居,4居户型面积:99.00平方米-139.
图片尺寸1032x1400
杭州拱墅和睦滨融府拱墅区大悦城城西银泰城5号线10号线黄龙体育场
图片尺寸600x450
和品最低总价仅需323万对决滨融府你怎么选
图片尺寸400x600