演讲厅平面图

rb105演讲厅 可容纳428人
图片尺寸546x768
本资料为报告厅声学设计装修设计施工图 资料内容包括:平面图,报告厅
图片尺寸515x445
德国亚琛工业大学新研究学习演讲中心schmidthammerlassenarchitects
图片尺寸650x921
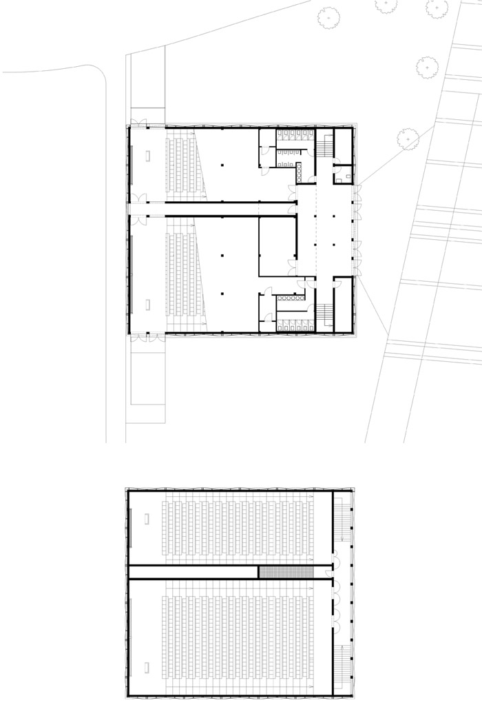
智利马里亚诺latorre演讲厅平面图-智利马里亚诺latorre演讲厅第7张
图片尺寸2000x1737
智利马里亚诺latorre演讲厅平面图-智利马里亚诺latorre演讲厅第8张
图片尺寸2000x1615
87㎡ 2,功能:可作为演讲厅,报告厅,产品发布会,音乐会,艺术汇演
图片尺寸1080x602
慕尼黑理工大学演讲大厅
图片尺寸760x597
600平米多功能厅设计说明
图片尺寸690x517
jihlava大学理工学院新演讲大厅捷克qartaarchitektura
图片尺寸960x672
某地演讲礼堂电气照明设计cad施工图
图片尺寸610x432
某地方演讲礼堂电气照明施工图cad图纸
图片尺寸610x431
某地演讲礼堂电气照明设计cad施工图
图片尺寸610x432
慕尼黑工业大学临时演讲厅德国02deubzerkonigrimmelarchitekten
图片尺寸700x1023
某地演讲礼堂电气照明设计cad施工图
图片尺寸610x432
某城市小型报告厅施工装修设计图纸
图片尺寸610x432
大型报告厅建筑装修设计cad施工图
图片尺寸610x497
可充分展示演讲魅力,是与会者专注于会议讨论,全面提升会议实效,搭配
图片尺寸801x576
本图纸为某大型多功能展厅cad建筑设计详细施工图,内容包括:展厅平面
图片尺寸610x861![[分享]多功能厅装饰效果图资料免费下载](https://i.ecywang.com/upload/1/img2.baidu.com/it/u=2462656707,2213194391&fm=253&fmt=auto&app=138&f=JPEG?w=560&h=420)
[分享]多功能厅装饰效果图资料免费下载
图片尺寸560x420
大报告厅演讲台
图片尺寸560x420