火电厂布局图

火电厂认识实习报告
图片尺寸1485x622
热力发电厂
图片尺寸595x409
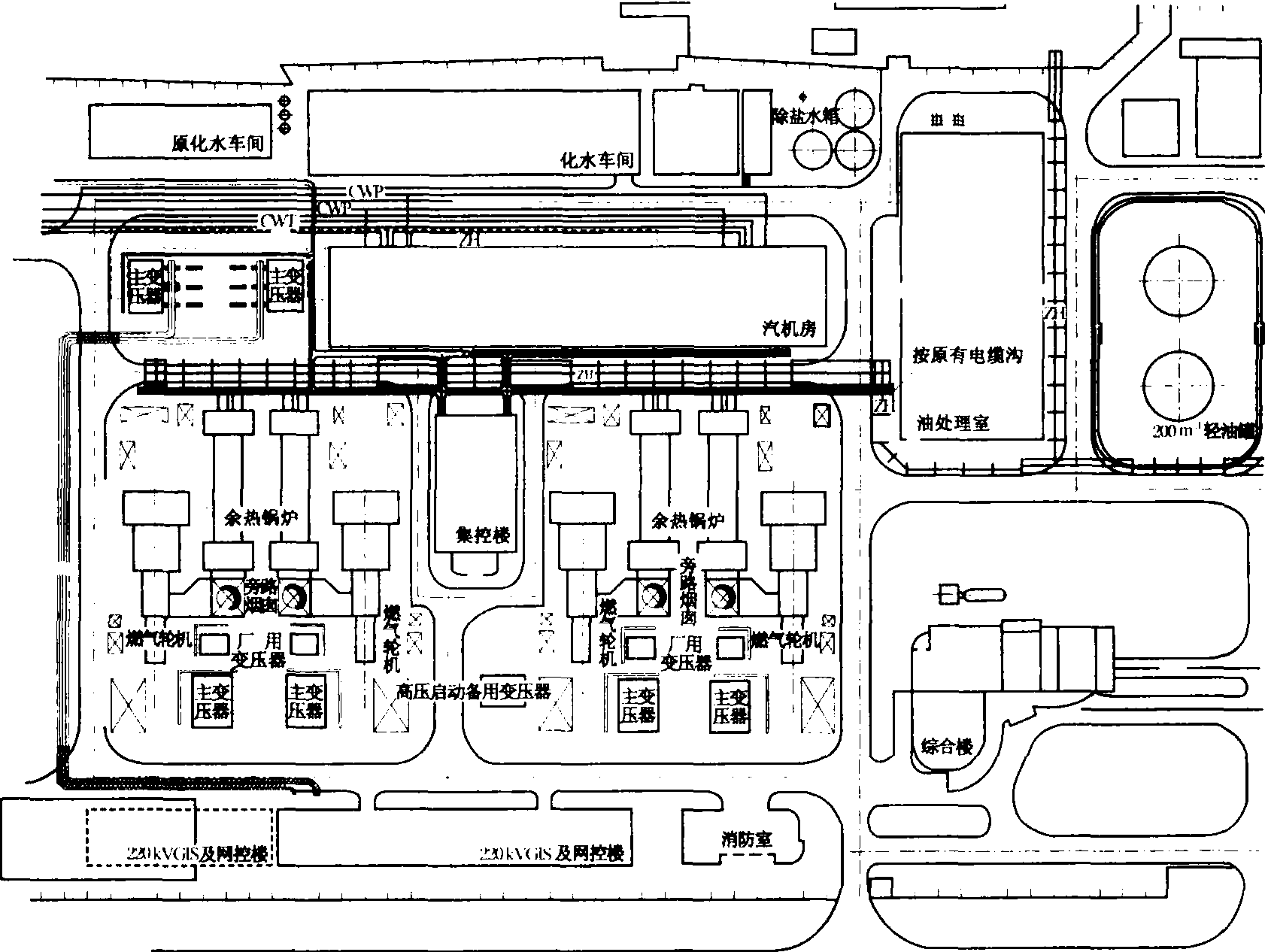
燃气轮机发电厂设计
图片尺寸1682x1266
火电厂示意图
图片尺寸1080x810
电厂设备布置图
图片尺寸947x590
火电厂生产过程
图片尺寸584x252
火力发电厂热力系统介绍ppt
图片尺寸1080x810
涨知识 | 关于火电厂主厂房的布置
图片尺寸640x468
火电厂系统图
图片尺寸893x447
火电厂生产过程示意图
图片尺寸800x576
5×300mw机组火电厂水处理工艺设计
图片尺寸812x561
测振笔f810电厂应用介绍
图片尺寸900x677
某火电厂扩建工程施工总平面布置图
图片尺寸620x539
2x25mw电站电厂总平面布置图新
图片尺寸792x582
火电厂生产过程
图片尺寸817x472
火电厂系统图
图片尺寸893x315
燃煤电厂的主厂房布局07随着大家对环保意识的提高,防止环境污染也是
图片尺寸615x428
火力发电厂系统简介ppt
图片尺寸1215x855
大型火力发电厂电气部分设计
图片尺寸769x544
4机组300mw蒸汽锅炉热电厂结构布置图
图片尺寸765x525