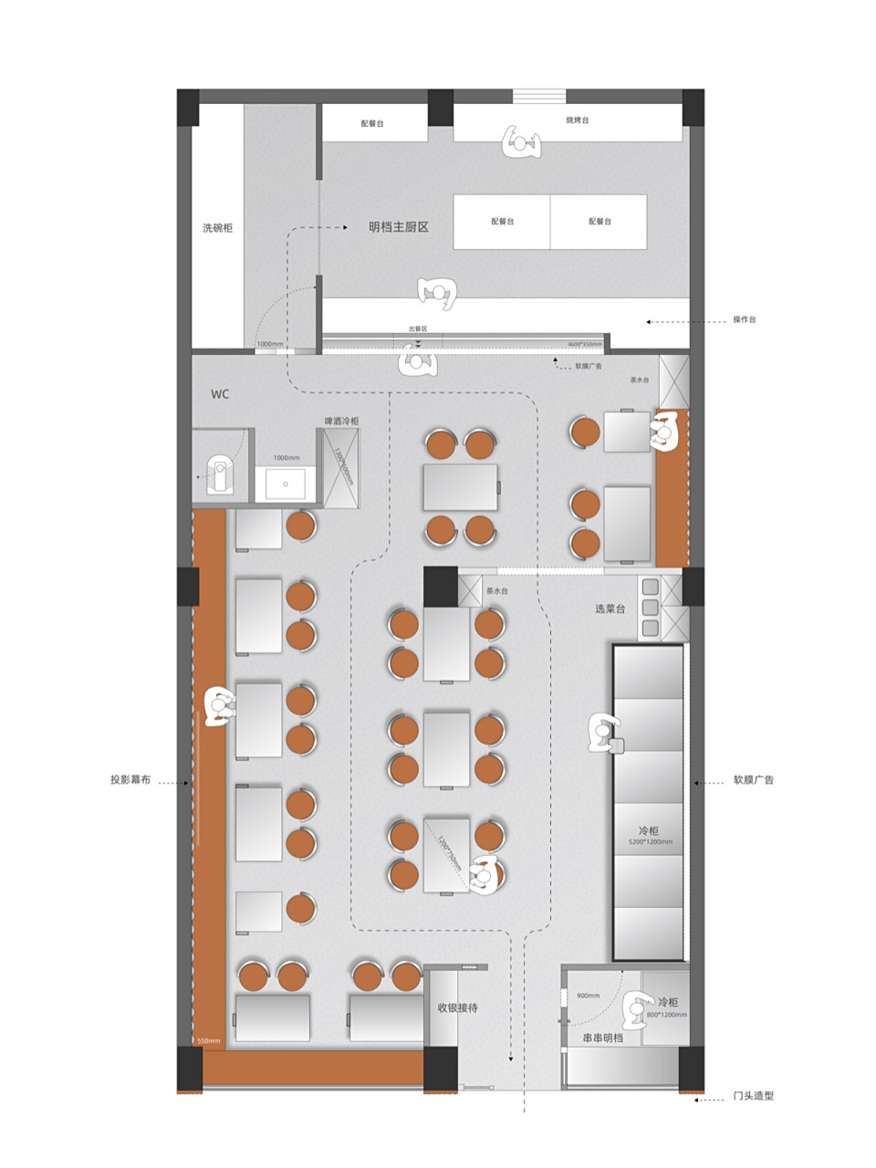
烧腊明档设计平面图

第1章第7节烧腊间的布局设计.doc
图片尺寸792x1120
餐厅平面规划 新人刚接触平面规划 虚心求前辈指点
图片尺寸2936x4120
烧烤店-平面布局设计 设计阶段需要根据客户需求 场地条件 整体预算
图片尺寸960x1280
明档系列①丨明档≠排挡 ,8招设计提人气,全面升级3.0(深度好文)
图片尺寸1002x752
案例-徐先生的烧腊档装修实景图赏析-土巴兔家居室内装修设计效果图
图片尺寸1000x571
东京一番街家宴烧烤料理 - 餐饮空间 - 安明远设计作品案例
图片尺寸4961x3508
第三届"揭秘明档的秘密——明档展台设计及菜品摆台培训班"开课了
图片尺寸1280x743![[由于多方原因,设计方案并未全面实施,现场和设计有一定差距]](https://i.ecywang.com/upload/1/img2.baidu.com/it/u=45413228,3720467015&fm=253&fmt=auto&app=138&f=JPEG?w=708&h=500)
[由于多方原因,设计方案并未全面实施,现场和设计有一定差距]
图片尺寸3309x2336
毛赟的设计师家园
图片尺寸660x576
李文的设计师家园
图片尺寸660x444
西餐明档区平面布置图
图片尺寸560x420
李文的设计师家园
图片尺寸660x444
【明档酒店三爆盈利模式】10月23-24日在徐州开课啦
图片尺寸1080x610![[图块/节点]餐厅明档详图](https://i.ecywang.com/upload/1/img0.baidu.com/it/u=3560881138,4271417578&fm=253&fmt=auto&app=138&f=JPEG?w=500&h=375)
[图块/节点]餐厅明档详图
图片尺寸800x600
梅山烧烤店
图片尺寸806x570
小魔仙烤鱼餐厅-平面布置图
图片尺寸742x800
华空间餐饮空间设计采用双中心布局,明档直接衔接到外立面布局,是的
图片尺寸2807x2512
除了固定的厨房,卫生间区域,剩下的被划分成了明档和不同形式的就餐区
图片尺寸640x608
公司做酒店明档cad图纸,尺寸很详细-室内设计师平台 -室内设计论坛-扮
图片尺寸633x693
三4d明档产品打造(1) 明档产品定位(2) 明档产品要点(3) 产品结构设计
图片尺寸953x1018