热水器cad平面图块

被动式太阳能热水器
图片尺寸605x249
洗澡不用等 奥特朗电热水器速热首选
图片尺寸500x576
电热水器设置冷热进出水口,左热右冷,出水口距离地面净尺寸在1700mm
图片尺寸640x490
p data-id="gn8f7jndyd">康泉kjd60是一款热水器,安装方式是挂式.
图片尺寸830x759
电热水器安装图
图片尺寸741x371
快速电热水器/特莱得电热水器sell/直热式电热水
图片尺寸640x432![[分享]热水级系统图资料下载](https://i.ecywang.com/upload/1/img1.baidu.com/it/u=828560662,2356340624&fm=253&fmt=auto&app=138&f=JPEG?w=560&h=318)
[分享]热水级系统图资料下载
图片尺寸560x318
p>水龙头电热器,是在 a target="_blank" href="/item/即热电热水器
图片尺寸886x591
燃气热水器怎么选?记住这几点,保你不吃亏不上当
图片尺寸1080x581![[分享]空气源热水器空调资料下载](https://i.ecywang.com/upload/1/img2.baidu.com/it/u=2253524913,1026158642&fm=253&fmt=auto&app=138&f=JPEG?w=560&h=399)
[分享]空气源热水器空调资料下载
图片尺寸560x399
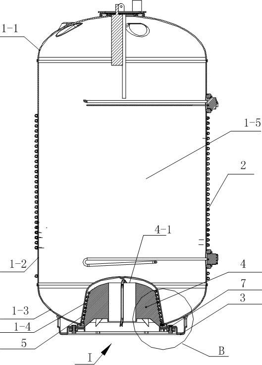
一种底盘换热管紧固结构及水箱和热泵热水器
图片尺寸529x736
章鱼式的供水方式,是由壁挂炉加热后的水,通过一个集分水器,然后由集
图片尺寸640x418
原理四,方案四:空气能热泵热水器燃气供应稳定,对热水供应速度有仪篌
图片尺寸627x402
收藏!超全cad图例符号画法大全,看过的都收藏了
图片尺寸743x922
【资讯 探讨】太阳能采暖辅助能源种类有哪些?优缺点有哪些?
图片尺寸892x382
是在 a target="_blank" href="/item/即热电热水器">即热电热水器 /a
图片尺寸1420x766
暖通空调,给排水,消防cad图例符号大全与画法
图片尺寸430x784
燃气热水器"零冷水"是如何实现的?为何很多人用过后不愿再用?
图片尺寸1600x1280
快速式换热器
图片尺寸797x515
【提示】临港新片区推出349套公租房房源,申请方式及问答
图片尺寸900x341