片石山房平面图

小蚂哥看了很多资料说天下第一山指的是片石山房,这点我并不认同.
图片尺寸882x950
扬州片石山房中国园林博物馆看展功课
图片尺寸1080x1440
面貌豫园-上海,1986年起,主持豫园东部修复工程扬州的片石山房-江苏
图片尺寸1080x1080
是在2011年,从书中了解到明末清初著名画家石涛的唯一遗作片石山房
图片尺寸1066x725
全园分为东花园,西花园,园居,片石山房和何家祠堂五部分
图片尺寸1080x810
浅谈中国南方五大民系的民居建筑
图片尺寸594x403
何园,个园,小盘谷,三家扬州家宅园林,你喜欢哪一座?
图片尺寸640x557
中可以看出何园布局,何园全园分为东园,西园,园居院落,片石山房个部分
图片尺寸700x933
二层平面图
图片尺寸750x529
潮汕民居"下山虎","四点金","四马拖车"
图片尺寸380x417
精 【认证车主年终福利】游玩南浔古镇(七)
图片尺寸400x586
扬州片石山房.
图片尺寸400x381
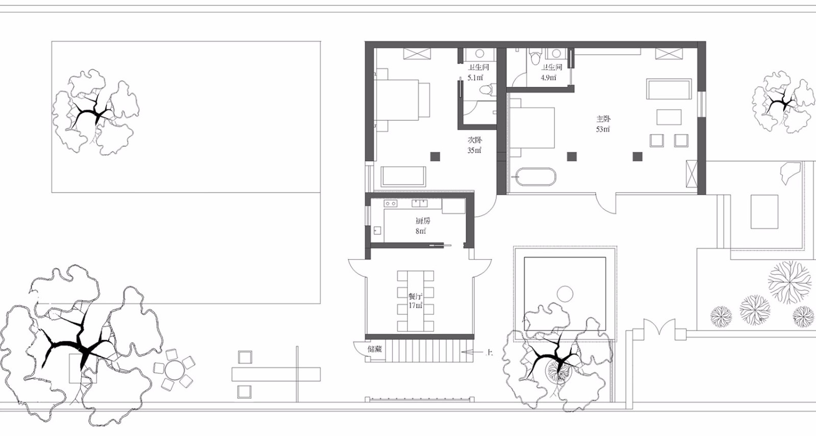
最终设计一层平面
图片尺寸600x397
何园,又名"寄啸山庄",是一处始建于清代中期的汉族古典园林建筑,被
图片尺寸640x454
余荫山房平面图和石景
图片尺寸674x362
片石山房风景
图片尺寸4096x2730
片山有致寸石生情片石山房
图片尺寸640x426
民宿设计:延庆水泉子村农宅变身网红民宿,把山野晚风装进画框里
图片尺寸1600x855
隋唐时期的江南第一都市,古典园林巧夺天工,丝毫不比苏州逊色|片石山
图片尺寸1000x628
片石山房
图片尺寸4032x3024