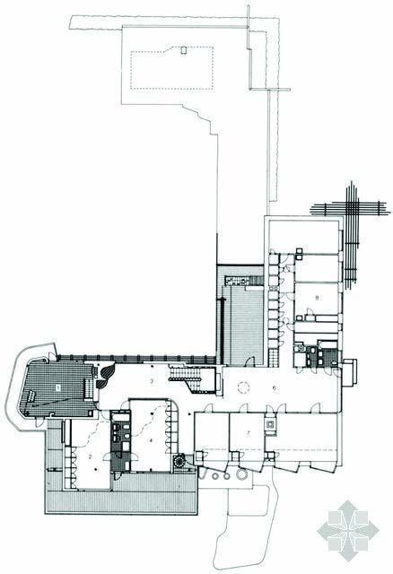
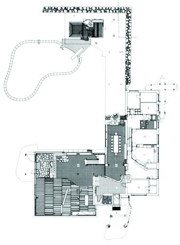
玛利亚别墅平面

玛丽亚别墅分析 - 阿尔托 - villa mairea - alvar aalto.ppt
图片尺寸1080x810
玛利亚别墅
图片尺寸924x1280
玛利亚别墅
图片尺寸920x1280
玛利亚别墅
图片尺寸951x1274
玛利亚别墅
图片尺寸438x640
建筑大师作品分析~玛利亚别墅
图片尺寸1080x810
玛利亚别墅分析 物有所值 走廊 楼上的走 廊里是孩子们 的娱乐空间.
图片尺寸1080x810
第17页 (共21页,当前第17页) 你可能喜欢 玛丽亚妇产 玛利亚别墅模型
图片尺寸1080x810
玛利亚别墅
图片尺寸401x560
玛利亚别墅
图片尺寸1016x1228
阿尔瓦阿尔托玛利亚别墅详尽分析ppt
图片尺寸1080x810
经典建筑分析-玛利亚别墅ppt
图片尺寸1080x810
玛丽亚别墅流线分析ppt
图片尺寸1080x810
玛利亚别墅分析图ps初稿
图片尺寸1080x1439
玛利亚别墅论文
图片尺寸560x802
刻出来的成品图#玛利亚别墅 #建筑设计 #建筑学
图片尺寸1080x1440
玛利亚别墅 分析ppt
图片尺寸1440x810
玛利亚别墅cad图纸
图片尺寸610x432
玛利亚别墅
图片尺寸367x500
阿尔瓦 阿尔托玛利亚别墅分析——内含超级精细的分层模型!
图片尺寸1198x870