电梯井道尺寸

电梯轿厢井道对比
图片尺寸1096x447
通力住宅楼电梯井道尺寸.doc 5页
图片尺寸792x1120
土建井道净尺寸为2000mm×2000mm,电梯轿厢尺寸1400mm×1350mm,自动
图片尺寸1079x1146
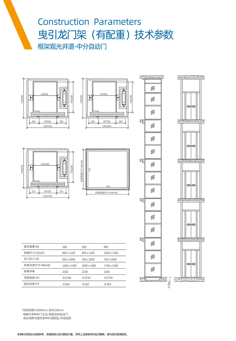
通力住宅楼电梯井道尺寸
图片尺寸763x1003
别墅电梯开门尺寸具体想做大?关乎于井道尺寸 - 抖音
图片尺寸1242x1660
电梯井道尺寸表
图片尺寸959x678
一平米超小井道空间可以装哪种小型家用别墅电梯?
图片尺寸640x811
通力住宅楼电梯井道尺寸.doc 5页
图片尺寸792x1120
家用电梯井道现场测量之前的准备工作
图片尺寸1999x1680
2-2008 电梯主参数及轿厢,井道,机房的型式与尺寸 第2部分:Ⅳ类电梯
图片尺寸800x800
电梯井道净尺寸为1800mm宽x1400mm深,现场-2 -1 2 4 这四层在前侧
图片尺寸640x573
几种别墅家用电梯安装位置尺寸比较特殊的情况电梯都能做多大?
图片尺寸504x538
小井道别墅电梯 家用电梯 观光电梯3层4层
图片尺寸790x1138
蒂升朗瑞h300家用电梯井道和轿厢尺寸
图片尺寸595x793
日立电梯 型号 轿厢 井道参数不同型号的日立电梯对应的轿厢 井道尺寸
图片尺寸1126x610
电梯 井道标准尺寸
图片尺寸1096x407
电梯主参数及轿厢井道机房的型式与尺寸第2部分Ⅳ类电梯
图片尺寸785x1032
通力住宅楼电梯井道尺寸.doc
图片尺寸792x1120
一般家庭电梯要多大尺寸 - 2020年最新商品信息聚合专区 - 百度爱采购
图片尺寸1080x1288
电梯井道尺寸示意图pdf格式
图片尺寸700x439