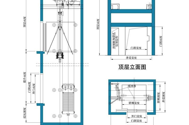
电梯间cad平面图

这套完整的cad图纸素材,vip会员
图片尺寸951x693
别墅电梯井道标准尺寸计算
图片尺寸641x800
楼梯间 电梯的24种最优组合,最小公摊就是这样得来的!
图片尺寸640x685
带你360度了解电梯
图片尺寸640x465
二维码刷卡人脸识别电梯门禁及agv机器人乘梯梯控系统施工方案
图片尺寸556x700
老旧小区加装电梯,半层入户就是个"鸡肋"!
图片尺寸562x530
楼梯间 电梯的24种最优组合,最小公摊就是这样得来的!
图片尺寸640x580
消防电梯前室的短边不应小于2.4m,如何理解?
图片尺寸625x756
青岛中三别墅电梯公司新增两款最大尺寸的便宜农村家用电梯
图片尺寸500x532
担架电梯终于有说法了!
图片尺寸845x461
▽ 加装电梯平面图建设工程性质:既有多层住宅加装电梯上海市浦东新区
图片尺寸392x367
天津启动老旧楼加装电梯,难题如何破解?
图片尺寸640x361
楼梯间 电梯的24种最优组合,最小公摊就是这样得来的!
图片尺寸407x698
楼梯间 电梯的24种最优组合,最小公摊就是这样得来的!
图片尺寸640x439
楼梯间 电梯的24种最优组合,最小公摊就是这样得来的!
图片尺寸640x450
你家小区能加装电梯吗?怎么申报?有多少补贴.答案都在这里了
图片尺寸725x496
把公摊面积压缩到极致的:24种
图片尺寸310x326
无电梯机房
图片尺寸800x528
这套完整的cad图纸素材,vip会员
图片尺寸1080x478
ic卡电梯门禁梯控管理系统配置清单及施工实施方案
图片尺寸1474x762