电缆施工图

直埋电缆敷设详图
图片尺寸960x1440
架空光缆施工通用图
图片尺寸833x1196
光缆线路工程图纸示例
图片尺寸959x1356
施工现场的配电线路电缆要求
图片尺寸484x300
电缆施工图
图片尺寸1131x629
电力工程电缆敷设通用图设计
图片尺寸1440x1020
电力工程电缆敷设通用图-电力工程施工图-筑龙电气工程论坛
图片尺寸560x338
电力工程电缆敷设通用图
图片尺寸762x536
一种35kv及以下耐火环保电力电缆
图片尺寸1862x1511
架空光缆施工通用图
图片尺寸834x1197![[无锡]地下二层车站临时用电施工组织设计](https://i.ecywang.com/upload/1/img0.baidu.com/it/u=1712026985,2263639133&fm=253&fmt=auto&app=138&f=PNG?w=665&h=500)
[无锡]地下二层车站临时用电施工组织设计
图片尺寸760x571
墙壁光缆施工通用图
图片尺寸833x1196
电力工程电缆敷设通用图
图片尺寸687x505
电缆直埋敷设的典型做法
图片尺寸840x705
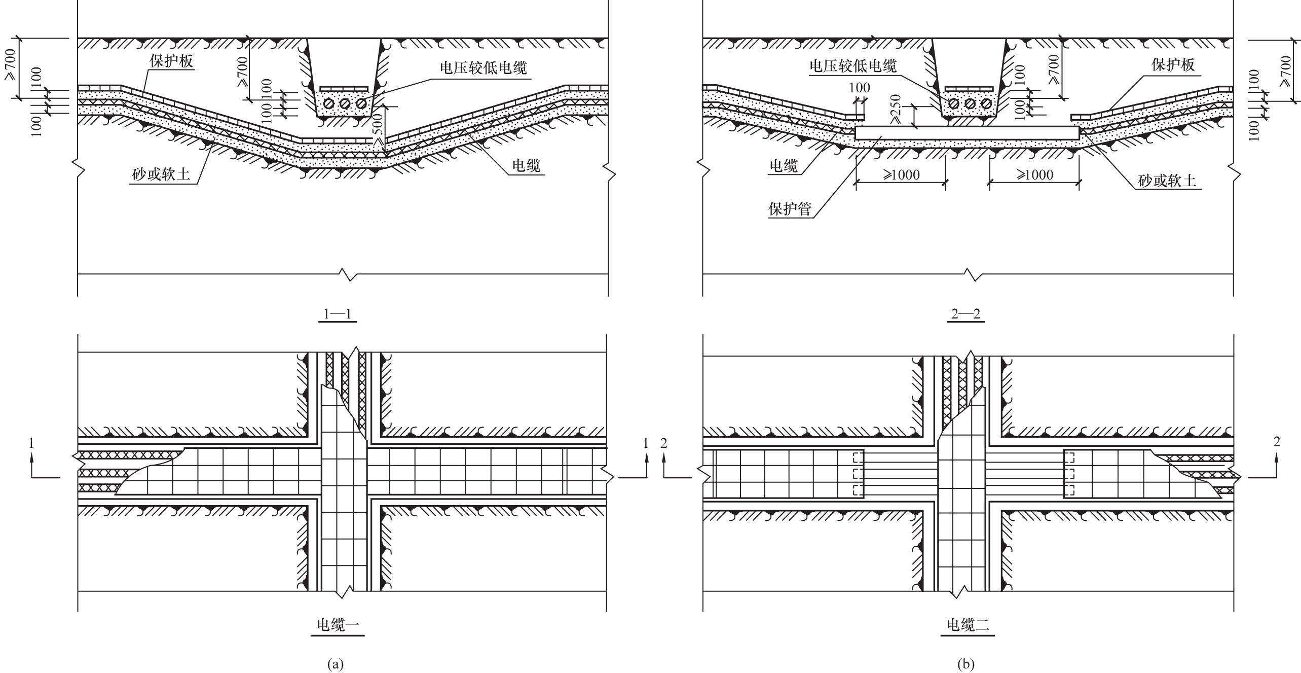
pd3-3-6 电缆与电缆交叉敷设方式与尺寸
图片尺寸2567x1327
直埋电缆敷设详图
图片尺寸610x432
10kv电力电缆直埋大样设计图
图片尺寸610x465
电力电缆运行规程
图片尺寸605x890
500kv电缆敷设设计图纸(电缆户外终端支架安装)_综合布线电气设计施工
图片尺寸610x861
pd3-3-11 10kv及以下电缆直埋最小允许距离
图片尺寸2323x1435