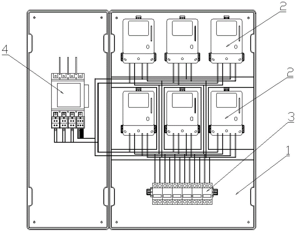
电表箱图纸

一种电表箱制造技术
图片尺寸1000x981
电表箱系统图
图片尺寸681x550
十二位计量电表箱内部走线图
图片尺寸1311x927
一种智能电表箱
图片尺寸1011x925
新国网单相九表位电表箱
图片尺寸2124x530
一种智能电表箱制造技术
图片尺寸1000x987
电能计量装置 正泰断路器 高压计量箱 电力计量装置 电表箱尺寸 计量
图片尺寸1787x1263
cad图纸 >13只入户电表箱结构示意图 cad图纸内容预览结束,如需
图片尺寸860x560
cn203423397u_透明智能电表箱失效
图片尺寸1000x783
惠州14电表箱1270×1200,见图纸价格多少钱?
图片尺寸508x496
一种具备测时功能的断路器测试电表箱制造技术
图片尺寸1000x826
一种带有布线槽的电表箱的制作方法
图片尺寸443x382
低压成套结构(单相表箱6~15位)_co土木在线图纸下载
图片尺寸708x442
一种多表位配电表箱制造技术
图片尺寸1000x792
一种多功能电表箱
图片尺寸587x545
电表箱 尺寸
图片尺寸957x502
住宅小区集中电表箱系统图
图片尺寸602x493
常用电表箱电气及箱体加工图纸
图片尺寸721x511
单相电表箱2表位带电度表插件- 箱体类图纸 - 沐风网
图片尺寸738x657
常用电表箱电气及箱体加工图纸
图片尺寸1200x1697