白市驿隧道规划图

白市驿隧道正式开工!7条隧道将于两年后扎堆建成
图片尺寸1012x535
白市驿隧道启动施工总承包招标,主城将新增一座重要穿山通道
图片尺寸1459x550
科学城东西向又多一穿山隧道白市驿隧道项目预计三季度开工
图片尺寸598x421
白市驿隧道,科学谷二期等一大批重大项目开始招标,即将开工建设
图片尺寸1242x1325
重庆白市驿隧道动工
图片尺寸600x798
咱们接着来看看下面的设计图重庆市城乡规划公示白市驿隧道项目设计
图片尺寸720x414
白市驿隧道启动施工总承包招标,主城将新增一座重要穿山通道
图片尺寸824x496
白市驿隧道项目设计方案公示
图片尺寸3000x2122
科学城东西向又多一穿山隧道白市驿隧道项目预计三季度开工
图片尺寸571x291
重庆高新区白市驿隧道来了!3座隧道和4座立交,设计时速80km
图片尺寸640x411
重庆高新区白市驿隧道来了!3座隧道和4座立交,设计时速80km
图片尺寸640x410
白市驿隧道
图片尺寸750x500
白市驿隧道正式开工!7条隧道将于两年后扎堆建成
图片尺寸1254x892
最快10分钟到白市驿!华岩隧道今天通车了
图片尺寸402x500
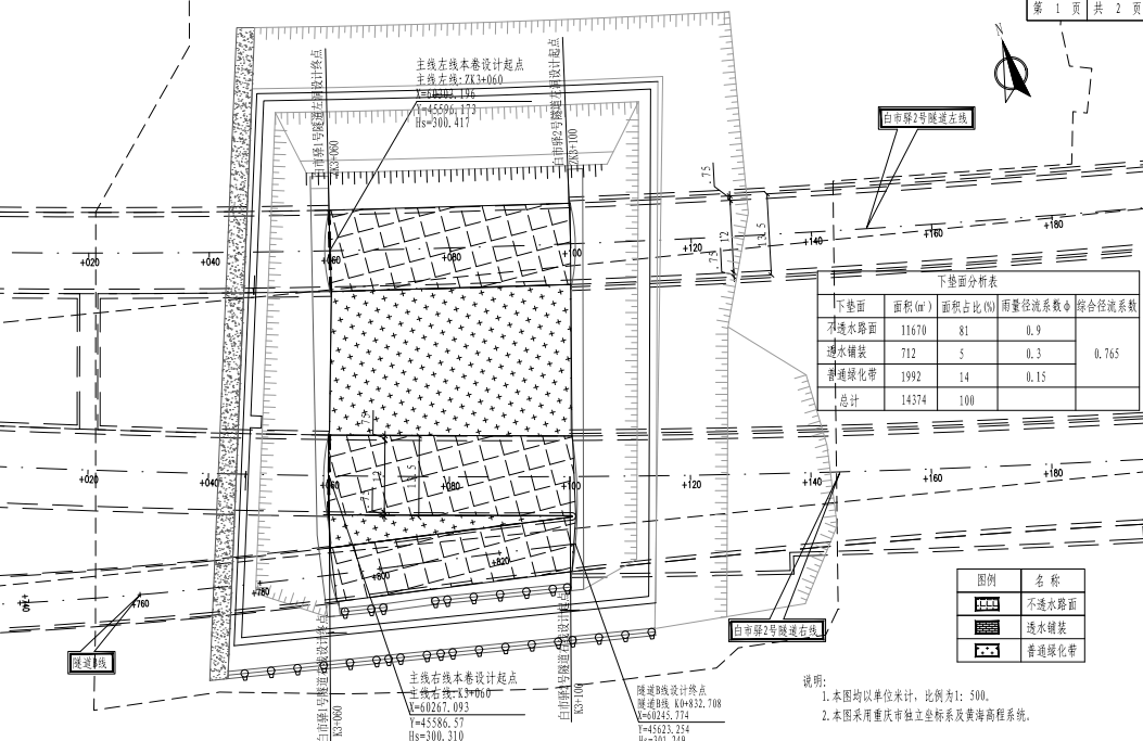
重庆白市驿隧道海绵城市专篇设计
图片尺寸1053x683
白市驿隧道正式开工!7条隧道将于两年后扎堆建成
图片尺寸1278x842
白市驿隧道工程的重要性如何?
图片尺寸640x701
白市驿隧道正式开工!7条隧道将于两年后扎堆建成
图片尺寸1000x738
此外,白市驿隧道,陶家隧道项目也将在今年内开工
图片尺寸606x706
重庆 > 正文▲中梁山隧道出城方向白市驿下道转换 周邦静摄 记者 李星
图片尺寸750x489