砌墙图纸符号

初学必备建筑施工图常用符号及图例
图片尺寸568x716
土建施工员建筑识图(二)ppt
图片尺寸1080x810
建筑平面图识读技巧
图片尺寸620x703![[分享]施工图常用符号,图例大全,超实用!强烈建议收藏!](https://i.ecywang.com/upload/1/img1.baidu.com/it/u=2080225834,2214708495&fm=253&fmt=auto&app=138&f=JPEG?w=633&h=439)
[分享]施工图常用符号,图例大全,超实用!强烈建议收藏!
图片尺寸633x439
装修第二步拆墙包下水管砌墙费用9642元
图片尺寸1080x1384
建筑工程施工图常用符号和图例
图片尺寸1288x1794
机电符号,门窗,墙体填充,楼层等cad图例
图片尺寸760x570
室内装饰施工图设计培训讲义102页
图片尺寸718x533
砌墙示意图
图片尺寸760x611
砌墙平面图.png
图片尺寸1495x1058
砌墙工艺及注意事项
图片尺寸1080x893
今日分享~共享砌墙图纸①拆光光②地板保留需开槽排线,空调位移位
图片尺寸1080x1439
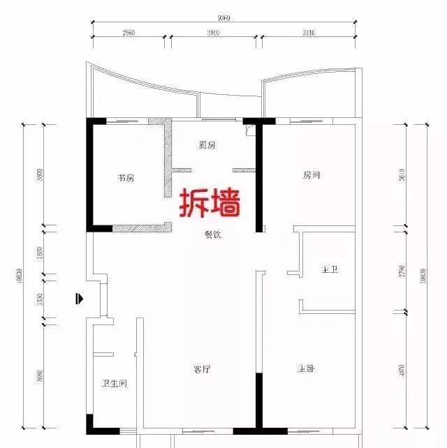
调整户型通过拆墙和砌墙来调整户型,让房子空间更实用,住得更加舒服.
图片尺寸640x642
能不能拆?
图片尺寸824x450
施工图常用符号及图例大全收藏备查
图片尺寸640x690
建筑施工图纸上的符号表示大全
图片尺寸569x736
建筑施工图纸上的符号表示大全
图片尺寸559x743
列表收藏!建筑工程图纸符号大全
图片尺寸640x669
识图系列—房屋建筑室内装修设计图例及符号
图片尺寸673x513
剪力墙结构改造墙体是否可以新砌墙
图片尺寸720x587