禹洲凤凰府户型

禹洲凤凰府g户型_禹洲凤凰府户型图-唐山搜狐焦点网
图片尺寸3466x5512
禹洲凤凰府d户型_禹洲凤凰府户型图-唐山搜狐焦点网
图片尺寸800x533
路北禹洲·凤凰府最新价格来袭,约23500-27000元/㎡,户型面积173~206
图片尺寸1200x900
禹洲·凤凰府c户型-约173㎡三室两厅三卫户型图
图片尺寸1200x900
禹洲凤凰府g户型_禹洲凤凰府户型图-唐山搜狐焦点网
图片尺寸800x533
禹洲凤凰府——路北凤凰新城热门高性价比楼盘测评
图片尺寸1066x800
凤凰华府3室2厅2卫户型图 - 银川乐居
图片尺寸800x600
【多图分享】关于禹洲凤凰府,你可能不知道的
图片尺寸1250x704
禹洲凤凰府户型图
图片尺寸1066x800
禹洲凤凰玺
图片尺寸1620x1080
禹洲凤凰府173㎡户型
图片尺寸900x600
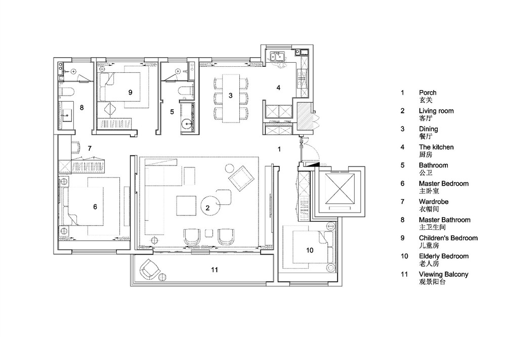
142㎡禹洲唐山凤凰府样板间 | koyi柯翊设计
图片尺寸1000x666
2020年10月 新推户型 禹洲凤凰府新推108-144㎡的户型
图片尺寸1016x762
中式大宅万科翡翠观唐融创·湖岸壹号水岸名都新城澜樾府万科未来城
图片尺寸960x720
禹洲凤凰府户型类别:3居,4居户型面积:108.00平方米-206.
图片尺寸1066x800
上海禹洲凤凰府楼盘信息:禹洲凤凰府楼盘开盘交房信息_销控信息_新闻
图片尺寸1016x762
丰盛凤凰府二手房,160万,4室1厅,2卫,150平米-南京安居客
图片尺寸1179x1476
户型图: 二期高层d户型125㎡三房两厅两卫 特点:南北通透,并带有超大
图片尺寸900x600
碧桂园凤凰府户型三居
图片尺寸730x960
湖州碧桂园凤凰府直太牛了湖州碧桂园凤凰府火了
图片尺寸2316x3852