立体车库原理图

一种立体车库
图片尺寸2006x1608
一种循环式立体车库的制作方法
图片尺寸552x1000
cn213087585u_一种巷道堆垛类立体车库
图片尺寸1759x796
图解垂直升降类立体车库的运行原理
图片尺寸1263x893
一种平面移动类立体车库
图片尺寸1618x1070
cn213573255u_一种带二次搬运的梳齿式立体车库有效
图片尺寸1868x2295
两层升降横移类立体车库结构图
图片尺寸628x572
一种横列式机械立体车库
图片尺寸1780x2397
一种三层简易式立体车库的制作方法
图片尺寸1000x822
一种立体车库的制作方法
图片尺寸1954x941
cn201411929y_一种方便迁移的无地坑垂直升降式立体车库失效
图片尺寸1046x1299
垂直循环类立体车库
图片尺寸751x536
cn110566021a_一种新型垂直升降立体车库在审
图片尺寸1000x785
垂直循环式的立体车库小型循环8车位cad图纸
图片尺寸1074x617
一种稳定性高的立体循环车库的制作方法
图片尺寸319x444
具有电动汽车充电的垂直循环式立体车库无线供电系统的制作方法
图片尺寸737x1000
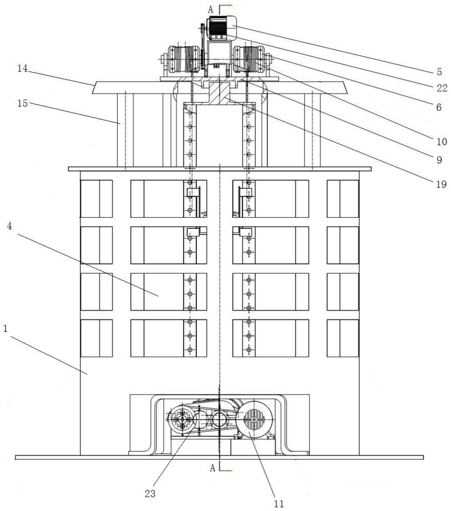
一种深井式立体车库-爱企查
图片尺寸1729x1959
一种机械式立体车库
图片尺寸1867x1586
机械式立体车库的工作运行原理
图片尺寸657x325
cn206785050u_一种垂直移动式圆形立体车库有效
图片尺寸1000x808