立杆纵距和横距

jinzhongsheng .kaiping
图片尺寸725x385
老师回复:方案中采用扣件式钢管支撑架体系,支撑架立杆纵横向间距有1.
图片尺寸570x388
脚手架分类
图片尺寸640x366
支架搭设应符合下列规定: 2 立杆纵距,立杆横距不应大于1
图片尺寸760x458
脚手架立杆纵距是什么意思,请附示意图.
图片尺寸393x406
外架,支模架安全怎么做?附:施工现场搭设脚手架常见问题图片及分析
图片尺寸671x758
5,应四周交圈设置,并用直角扣件与内外角部立杆固定.
图片尺寸894x599
满堂脚手架立杆横距与纵距有何区别?
图片尺寸1182x514
台球杆科普,新手选杆不求人
图片尺寸1024x1229
③ 立杆纵距不大于1.5m,横距不大于1.2m,大横杆步距不大于1.
图片尺寸561x563
轮扣式脚手架立杆横杆步距如何选择看完就懂
图片尺寸791x409
外架立杆间距不得大于多少
图片尺寸750x400
【圈内】多图 | 这些脚手架安全隐患你都注意到了吗?
图片尺寸640x430
8m,立杆纵距la取0.9m,横距lb取0.9m.
图片尺寸621x485
第137集:什么是大横杆,小横杆,纵向水平杆,横向水平杆?
图片尺寸720x540
高支模专项施工方案编制范本!
图片尺寸617x390
芜湖供应钢管出租值得信赖
图片尺寸586x440
第一,规范中给出的数据表格是,纵距的最大长度是2米,横距最大1
图片尺寸640x498
盘扣式脚手架搭设高度83场地长度1212m如何定脚手架立杆横纵距步距
图片尺寸1080x916
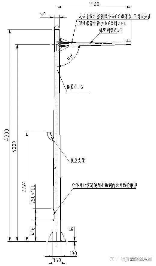
根据实现的功能不同,立杆的形式不一,监控立杆按照高4-6米横臂1-3米
图片尺寸519x884