管理用房平面图

物业管理用房公示
图片尺寸1129x761
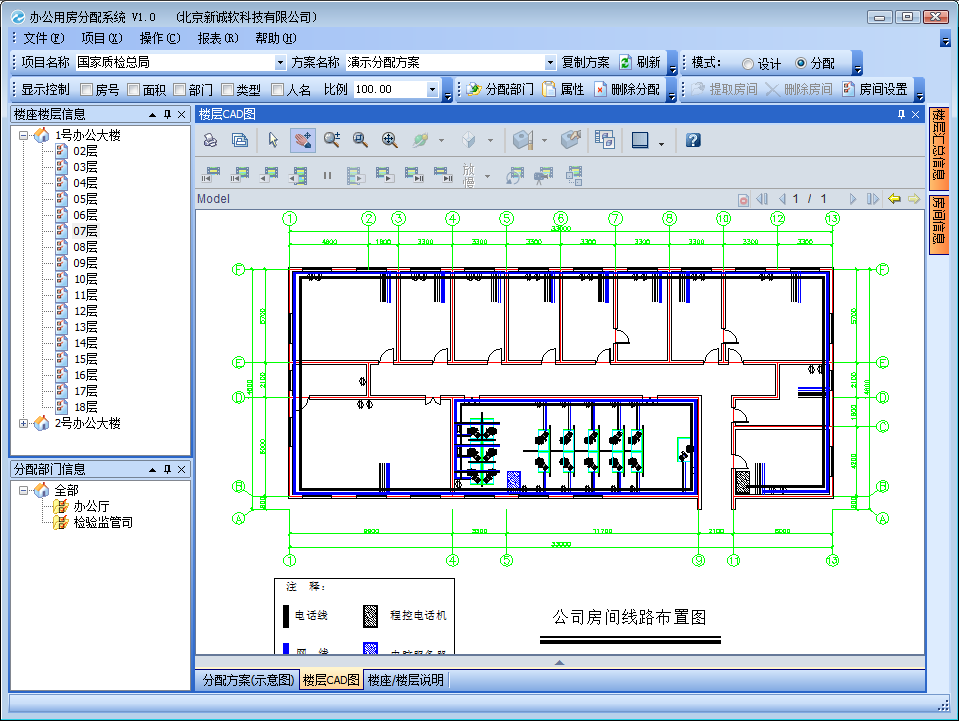
以图管房,主要是通过gis的形式体现,因为整个城市的房屋数量庞大,管理
图片尺寸1281x776
某公园管理用房建筑施工图
图片尺寸560x420
康家石门子旅游景点管理用房平面图
图片尺寸1440x1020
幼儿园服务管理用房设计
图片尺寸1080x1080
某水库防汛值班砖混结构管理用房图纸
图片尺寸610x432
某地公园管理用房建筑设计施工图纸
图片尺寸610x432
电气设备赛涧回族乡江台村蘑菇生产基地管理房
图片尺寸1440x1020
管理用房
图片尺寸556x350
以图管房,主要是通过gis的形式体现,因为整个城市的房屋数量庞大,管理
图片尺寸959x721
关于状元府小区增建物业管理用房方案的批前公示
图片尺寸1280x720
公园管理房施工图共6张图纸
图片尺寸2400x1697
管理房右视图,管理房平面图充值vip下载帮助点击进入下载管理房建筑
图片尺寸525x369
管理房设计图纸
图片尺寸440x335
管理用房全套6张图纸
图片尺寸545x410
某地物业管理用房建筑施工图
图片尺寸610x432
管理房木屋平面图
图片尺寸820x576
管理用房首层给排水平面图
图片尺寸894x931
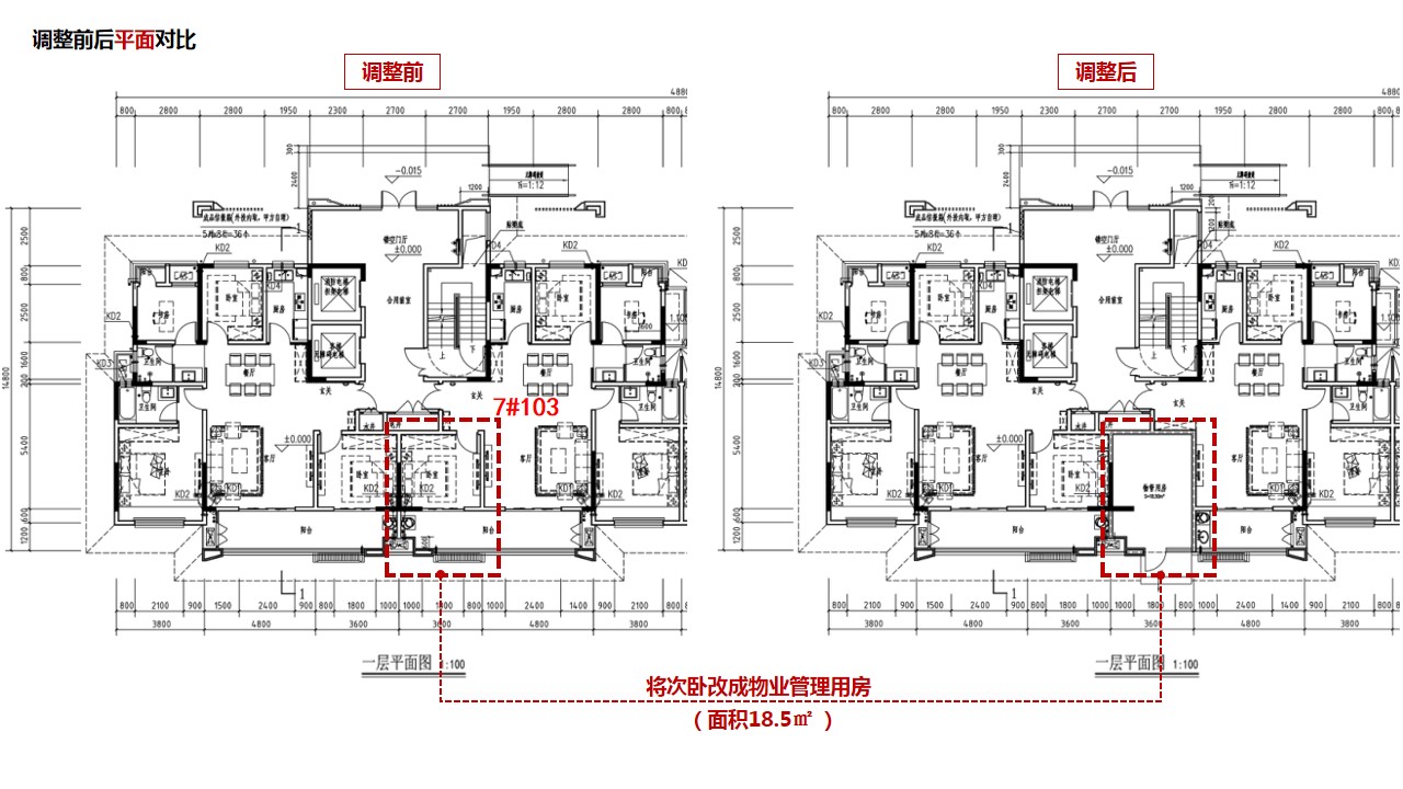
弘宇领玺调整前后配套用房一层平面图.jpg
图片尺寸911x641
某地水上乐园管理用房建筑设计施工图,包括:立面图,平面图等仅供参考
图片尺寸610x432