纵向示意图

横向发展和纵向发展
图片尺寸1210x750
横向与纵向挖掘思路的两在方向每日观察0018
图片尺寸624x528
如②,③号钢筋,它是由纵向受力钢筋弯起而成.
图片尺寸1417x829
纵向挖掘法 (1)分层纵挖法:沿路堑全宽,以深度不大的纵向分层进行挖掘
图片尺寸640x277
横向和纵向视野尺寸示意图
图片尺寸1488x2122
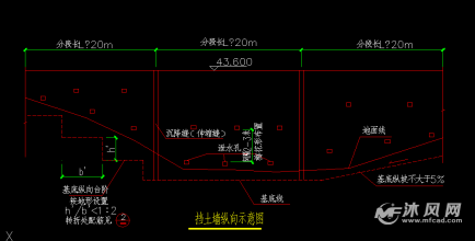
基坑纵向开挖分段图
图片尺寸560x414
图10 管道纵向截面受力示意图
图片尺寸560x568
下图为人体消化吸收的过程示意图①⑤分别表示不同的消化液纵向箭头
图片尺寸430x215
纵向加密装置现场配置详细说明
图片尺寸1434x793
网 建筑工程 二级建造师 可分为水平分层填筑法与纵向分层填筑法
图片尺寸780x318
纵向增强体土石坝新坝型及其安全运行性能分析
图片尺寸1575x748
纵向示意图
图片尺寸434x220
箱梁钢铰线纵向布置图,本工程资料为dwg格式,内含各版块详细示意图
图片尺寸610x432
纵向施工示意图
图片尺寸560x296
示意图.
图片尺寸1080x864
箱基纵向整体弯矩示意图
图片尺寸726x340
关键词: 爆破设计与施工全断面开挖布孔示意图炮眼布置纵向
图片尺寸760x568
小导管超前支护纵向布置图
图片尺寸560x420
间隙楔紧 横向水平拉杆 纵向水平拉杆 垫板 底座 层高 8m 200mm 小于
图片尺寸1080x810
二,纵向施工缝
图片尺寸640x399