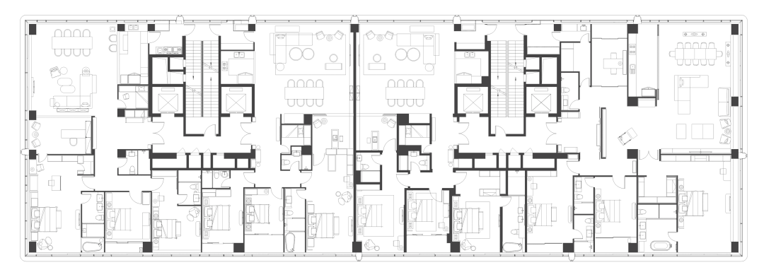
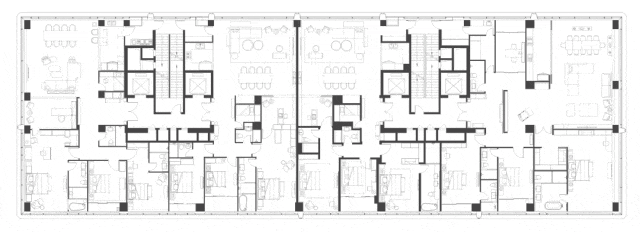
绿城钱潮湾户型图

绿城钱潮湾——2021杭州【绿城钱潮湾】楼盘详情!售楼处地址!
图片尺寸1000x430
重庆绿城晓风印月4室2厅2卫户型图-重庆楼盘网
图片尺寸395x530
绿城春熙潮鸣180平户型
图片尺寸900x1145
【绿城·春来云潮】售楼处在售房源及开盘单价——图文解析
图片尺寸600x955
户型示意图 ▼b1户型,建面约125㎡,3房2厅2卫
图片尺寸877x1000
合肥禹洲绿城兰园小区_二手房_租房_户型图-合肥源浩网
图片尺寸1280x960
绿城·凤起潮鸣户型图
图片尺寸900x673
绿城凤起和鸣2期164㎡叠墅(上叠)交付实拍|户型图||图
图片尺寸650x451
中交绿城·桃源小镇提供项目户型图
图片尺寸598x749
绿城交投晓风印月a1户型建面116平
图片尺寸900x1274
【凤起钱潮户型图】-杭州我爱我家新房
图片尺寸760x1169
绿城·芳菲郡115方户型图
图片尺寸1269x1432
【凤起钱潮户型图】-杭州我爱我家新房
图片尺寸542x690
绿城润园 x-2户型 3居3
图片尺寸1440x2035
绿城汀岚f_绿城汀岚户型图-青岛搜狐焦点网
图片尺寸467x700
西双版纳绿城春江明月 户型图
图片尺寸2482x3509
十里留香暖意芬芳绿城留香园盛夏来袭
图片尺寸500x890
绿城留香园e1户型145㎡_绿城留香园户型图-嘉兴搜狐
图片尺寸520x700
美的绿城凤起兰庭109-2户型户型图
图片尺寸800x600
杭州绿城钱潮湾售楼处电话【官
图片尺寸600x269