翡丽甲第户型图

翡丽甲第3600各付带子母双车位高区4房非诚勿扰
图片尺寸1340x924
翡丽甲第南北大三房177平豪华装修
图片尺寸1080x810
翡丽甲第丨新出房丨低于同户型700w
图片尺寸1080x1439
东外滩第一豪宅翡丽甲第
图片尺寸1080x1017
翡丽甲第户型图(上海链家新房)
图片尺寸618x463
翡丽甲第,上海翡丽甲第楼盘详情,楼盘户型,周边配套,交通地图,长阳路
图片尺寸850x904
保利翡丽甲第用户点评-保利翡丽甲第怎么样-上海凤凰房产
图片尺寸754x900
翡丽甲第的147平米2650万带车位
图片尺寸1080x810
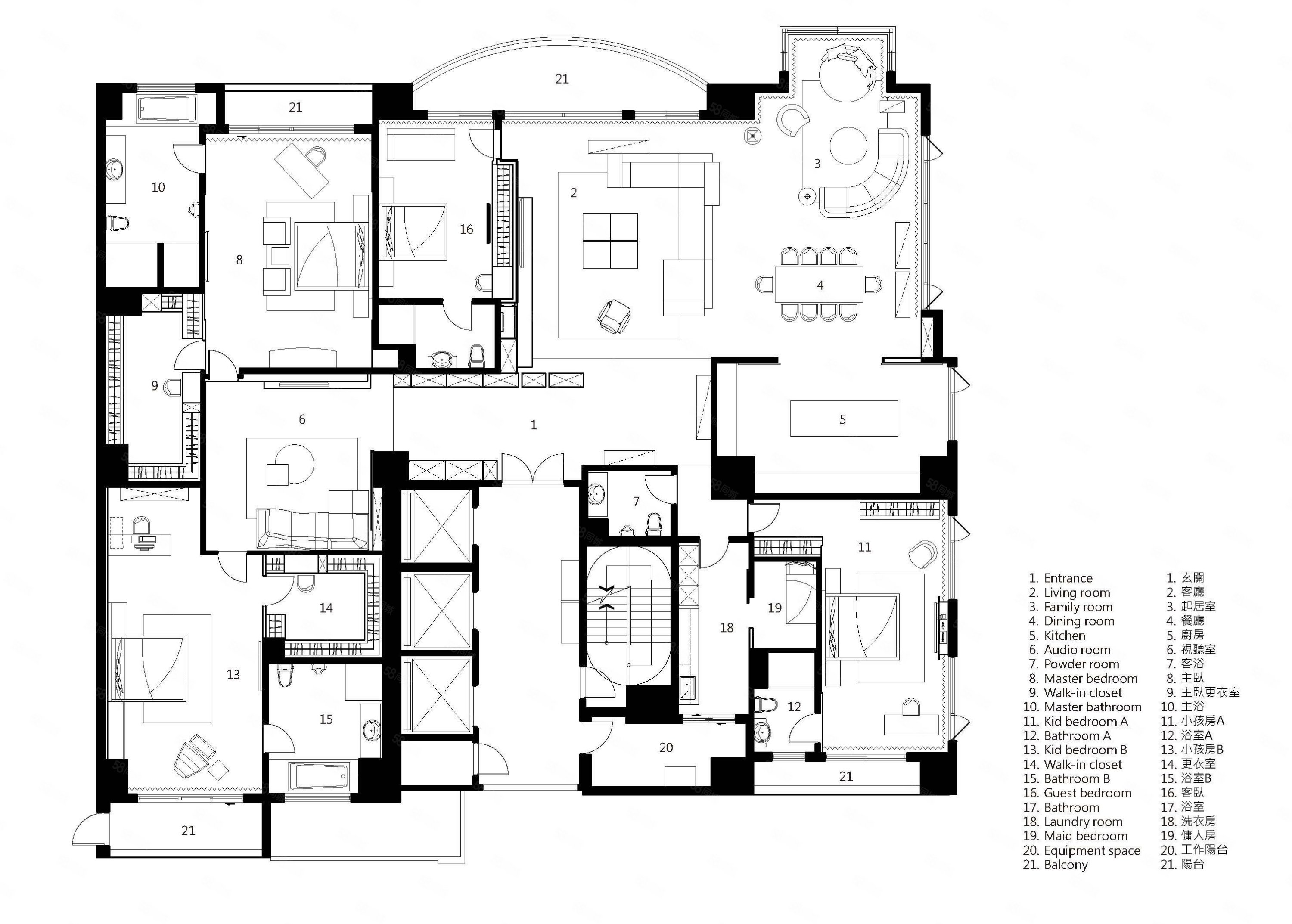
内中环罕有低单价豪宅,大平层,一梯一户,全明户型,翡丽甲第-上海58
图片尺寸3000x2146
翡丽甲第 顶楼复式 厅高7米2 送双车库附送泳池,全江景享受
图片尺寸1200x900
翡丽甲第高区南北大三房145平
图片尺寸1080x810
翡丽甲第
图片尺寸800x529
翡丽甲第3室2厅2卫1厨129.00㎡户型图
图片尺寸800x800
保利翡丽甲第户型图
图片尺寸800x924
翡丽甲第次顶楼|全小区单价最低|没有之一
图片尺寸1080x815
翡丽甲第
图片尺寸960x720
翡丽甲第a1户型图户型图
图片尺寸950x633
上海翡丽甲第怎么样 均价,户型,配套全解析
图片尺寸900x600
保利翡丽甲第地铁口新盘户型展示
图片尺寸500x829
邱德光2015最新力作上海翡丽甲第样板房深度帖
图片尺寸1200x900