老年公寓 户型

燕园社区的护理区主要有 2 个不同的户型,一种是针对需要生活协助的
图片尺寸1080x1154
《淮安养老养生产业园》起步区老年公寓户型意向调查
图片尺寸2148x3251
"双医院护航",建设了广州富力医院和主打老年康复的富力颐安综合医院
图片尺寸654x914
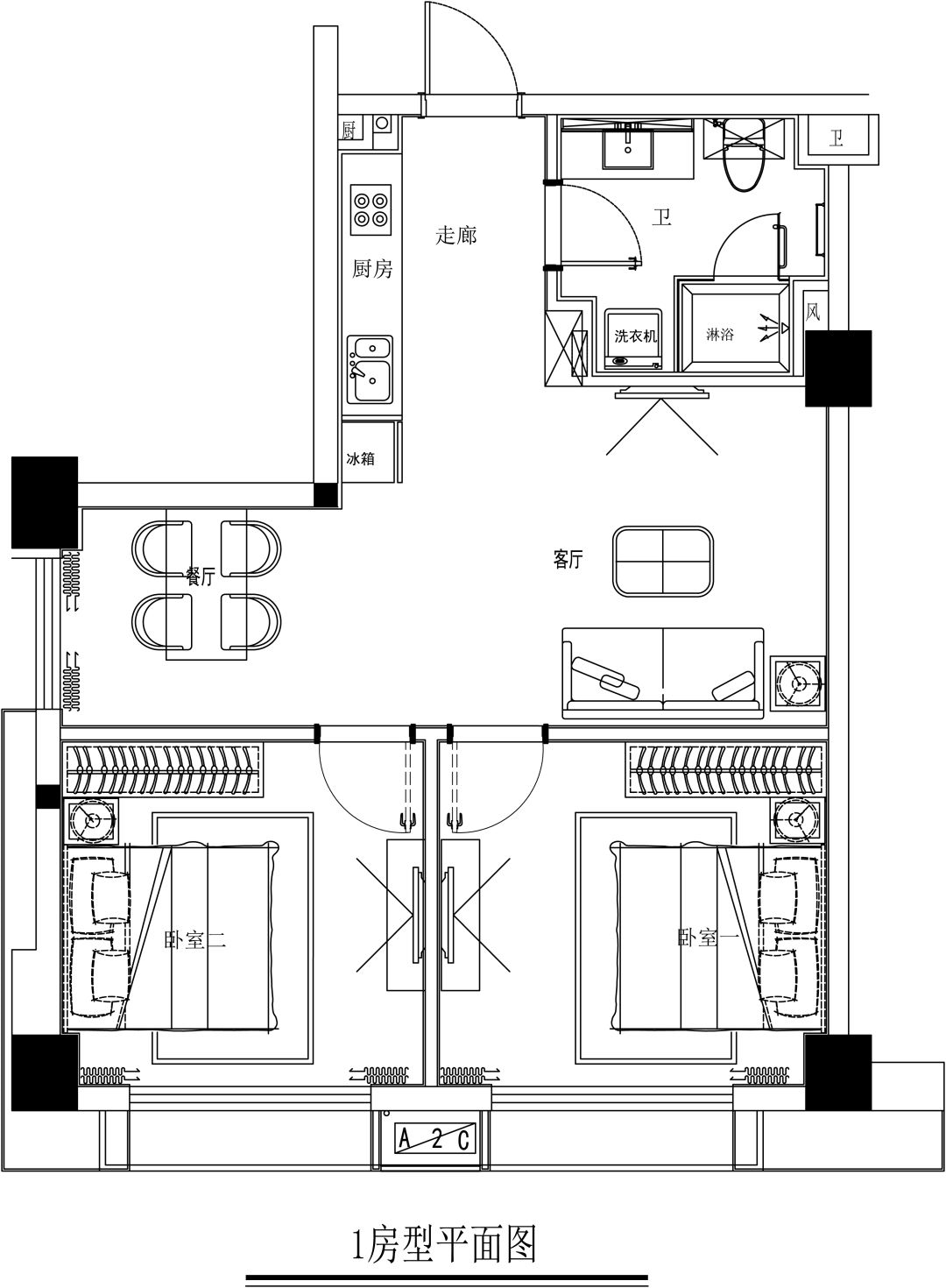
康养#某老年公寓户型设计 户型设计注重安全性.
图片尺寸1345x1280
《淮安养老养生产业园》起步区老年公寓户型意向调查
图片尺寸2148x3251
广州高端养老社区-泰康之家粤园养老社区收费价格,服务
图片尺寸1080x607
杭州高品质养老社区-杭州玉鸟随园嘉树养老社区环境
图片尺寸1080x675
"双医院护航",建设了广州富力医院和主打老年康复的富力颐安综合医院
图片尺寸654x914
《淮安养老养生产业园》起步区老年公寓户型意向调查
图片尺寸1775x3252
上海九如城《青浦朱家角九如城青蕴颐养苑》| 上海市青浦区老年公寓
图片尺寸660x1283
《淮安养老养生产业园》起步区老年公寓户型意向调查
图片尺寸1775x3252
颐和苑二期养老公寓户型
图片尺寸2292x3087
户型:玉鸟随园嘉树,建筑面积约76㎡,102㎡租金:长租15年,价格约91万起
图片尺寸1080x751
《淮安养老养生产业园》起步区老年公寓户型意向调查
图片尺寸1775x3252
户型情况项目共设置床位634张.
图片尺寸492x634
苏园养老社区地址,预约电话_服务_老年人_设计
图片尺寸1080x580
上海云栖兰亭老年公寓地址?在哪里?怎么样?_空间_生活_卧室
图片尺寸1080x1138
上海云栖兰亭老年公寓地址?在哪里?怎么样?_空间_生活_卧室
图片尺寸1080x1470
图8 君颐东方养老社区老年公寓的四种户型接下来,王元明分享了不同
图片尺寸918x399
颐和苑二期养老公寓户型
图片尺寸2292x3087