脚手架cad图怎么画

分享脚手架cad资料下载
图片尺寸399x404![[分享]脚手架节点详图构造资料下载](https://i.ecywang.com/upload/1/img2.baidu.com/it/u=1029568640,1702333182&fm=253&fmt=auto&app=138&f=JPEG?w=706&h=500)
[分享]脚手架节点详图构造资料下载
图片尺寸760x538
工地脚手架全套cad标准施工图丨落地式脚手架悬挑式脚手架爬架
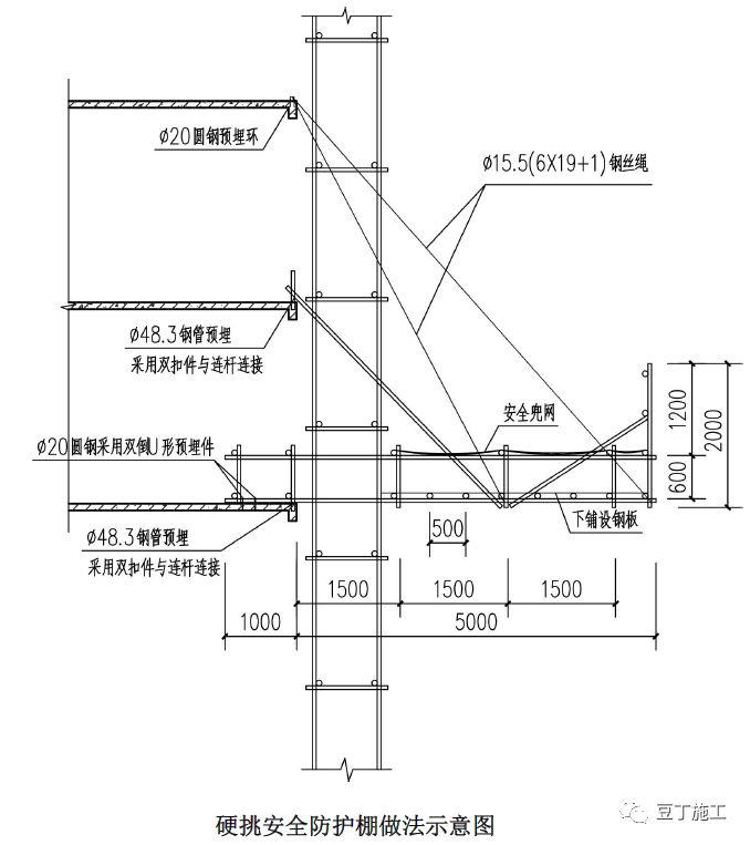
图片尺寸1051x746![[分享]悬挑脚手架详图cad资料下载](https://i.ecywang.com/upload/1/img0.baidu.com/it/u=1032891076,3291156584&fm=253&fmt=auto&app=138&f=PNG?w=498&h=500)
[分享]悬挑脚手架详图cad资料下载
图片尺寸640x643
工地脚手架全套cad标准施工图丨落地式脚手架悬挑式脚手架爬架cad版可
图片尺寸1080x762
工地脚手架全套cad标准施工图丨落地式脚手架悬挑式脚手架爬架cad版可
图片尺寸1057x750
工地脚手架全套cad标准施工图丨落地式脚手架悬挑式脚手架爬架
图片尺寸1073x760
工地脚手架全套cad标准施工图丨落地式脚手架悬挑式脚手架爬架
图片尺寸1060x754
【建筑人】这可能是最全面的脚手架安全技术规范详解,建议收藏!
图片尺寸725x341
工地脚手架全套cad标准施工图丨落地式脚手架悬挑式脚手架爬架
图片尺寸1046x745![[分享]大神绘制的全套脚手架三维构造图](https://i.ecywang.com/upload/1/img1.baidu.com/it/u=1072386066,2662741010&fm=253&fmt=auto&app=138&f=JPEG?w=627&h=500)
[分享]大神绘制的全套脚手架三维构造图
图片尺寸760x606
脚手架搭设主平面图及踢脚板做法示意图
图片尺寸560x543
承插形盘扣式脚手架专项施工方案编制超实用必须收藏
图片尺寸885x490
分享脚手架cad资料下载
图片尺寸639x459
分享脚手连墙架示意图资料下载
图片尺寸453x500
大楼悬挑式扣件钢管脚手架施工方案
图片尺寸347x347![[湖南]教学楼外脚手架施工方案(节点详图)](https://i.ecywang.com/upload/1/img0.baidu.com/it/u=3330399733,2356877259&fm=253&fmt=auto&app=138&f=JPEG?w=560&h=469)
[湖南]教学楼外脚手架施工方案(节点详图)
图片尺寸560x469
北京某公寓外双排脚手架立面图
图片尺寸398x278
超全面的脚手架工程图解
图片尺寸609x481
大神绘制的全套脚手架三维构造图小白看完也秒懂
图片尺寸678x763