船舶舷梯结构图

一种便于安装的船用舷梯-爱企查
图片尺寸796x800
铝合金船用跳板码头登船梯船用 铝质跳板 船用舷梯
图片尺寸1010x714
p data-id="gnx8i1df3w">舷梯是指装于船舶两舷供乘员上下船用的活动
图片尺寸421x392
尤其涉及一种用于船舶制造及修理时的船用舷梯
图片尺寸1000x971
一种船用舷梯的制作方法
图片尺寸1000x807
背景技术:舷梯是船舶与外界之间的通道设施,客船应设置舷梯,其他各类
图片尺寸1000x713
cn202879747u_可收放的船用折叠式舷梯失效
图片尺寸997x1000
背景技术:舷梯是指装在船舶两舷处供乘员上下船用的活动扶梯,选用木材
图片尺寸547x495
一种基于航标检修的船用舷梯的制作方法
图片尺寸358x444
舷梯/登离船装置的布置和检验要求-机务管理-船舶管理圈- 船舶管理
图片尺寸604x630
cn113086098a_一种深海钻井船组合式伸缩舷梯在审
图片尺寸1500x2204
一种船用舷梯
图片尺寸2158x2118
【舷梯】常见缺陷 船舶与码头之间的通道是否安全
图片尺寸1080x608
一种船用全自动折叠回转式舷梯
图片尺寸1874x952
cn207241966u_一种海上升压站用吊臂式舷梯有效
图片尺寸2474x1719
一种可升降登船舷梯的制作方法
图片尺寸1000x950
传统的登船装置是依靠由船自身携带的舷梯来完成. /p>
图片尺寸697x484
背景技术:舷梯是指装于船舶两舷供乘员上下船用的活动扶梯,用木材或
图片尺寸1000x884
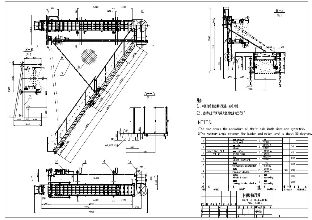
e4c-04舷梯.dwg
图片尺寸1200x800
舷梯是指装于船舶两舷供乘员上下船用的活动扶梯,用木材或金属制成,由
图片尺寸566x430