落地窗cad立面图

真正的落地窗瑞士人把它做到了极致
图片尺寸1080x1149
圣博盾|买到高层户型,不安装一扇落地窗就太浪费了!
图片尺寸563x426
落地窗玻璃隔断的施工要点
图片尺寸1080x1059
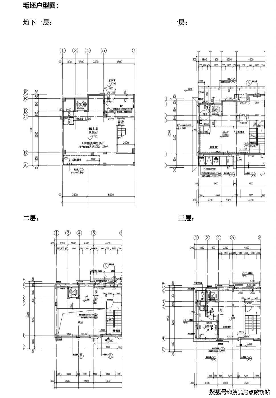
懋源璟橒-北京懋源璟橒楼盘详情-懋源璟橒房价-户型-容积率-小区环境
图片尺寸660x579
14x14三层欧式别墅,转角落地窗 露台尽情享受阳光
图片尺寸600x390
分享窗帘立面cad详图资料下载
图片尺寸560x420
地产项目铝合金门窗成本,就该这么控,没法更细了!
图片尺寸660x341
立面图
图片尺寸640x678
三,立面图别墅屋顶采用简洁大方的坡屋顶设计,落地窗加露台完美结合
图片尺寸800x640
原创分享10套带落地窗的别墅图农村房子这么建谁还稀罕去城里
图片尺寸1492x1500![[分享]cad立面大堂资料下载](https://i.ecywang.com/upload/1/img0.baidu.com/it/u=2230869468,3159697067&fm=253&fmt=auto&app=138&f=JPEG?w=713&h=500)
[分享]cad立面大堂资料下载
图片尺寸760x533
立面图1▲立面图2项目信息作品名称:black·forest公司名称:温州目
图片尺寸1080x833
落地窗放在了二层,三层,美观好看的同时,又不用担心安全问题.
图片尺寸534x560
三,立面图别墅屋顶采用简洁大方的坡屋顶设计,落地窗加露台完美结合
图片尺寸800x640
全落地窗 泳池 超大露台,9×12米现代度假小墅
图片尺寸640x346
cad复制命令用的好,不炸图块也可以!_操作_对象_ncopy
图片尺寸1414x1010
内饰与外景相互呼应 落地窗为室内的装饰提供了 7 ▽
图片尺寸640x494
约310平户型图▼客厅7米落地窗,采光明亮,尽显大气送电梯,北进门,南
图片尺寸968x1396
绿城湖畔云庐(绿城湖畔云庐)欢迎您丨绿城湖畔云庐
图片尺寸1920x804
一道9米落地窗带来的无限风景
图片尺寸650x665