葛塘规划图

网友热议大厂葛塘片区未来的规划你看好吗
图片尺寸1059x711
网友热议大厂葛塘片区未来的规划你看好吗
图片尺寸323x345
【大厂楼市】大厂葛塘g88地块规划重磅出炉,或影响大厂房价格局!
图片尺寸640x566
网友热议大厂葛塘片区未来的规划你看好吗
图片尺寸838x546
葛塘站将成为13号线和s8的换乘站|规划|片区|高新_新浪新闻
图片尺寸400x439
南京葛塘新城湖北房投g23地块案名公布
图片尺寸1280x808
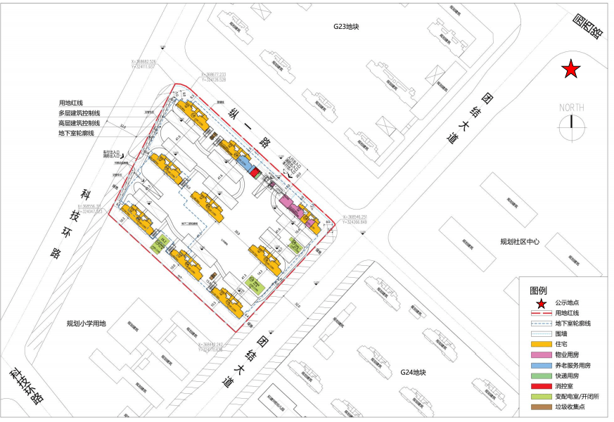
官方公示葛塘盘城这2个地块规划有变
图片尺寸947x635
大厂,葛塘三盘pk,谁更值得买?_腾讯新闻
图片尺寸1000x688
效果图曝光葛塘这三处拆迁安置房规划有变
图片尺寸1080x762
项目位于新区葛塘街道,东临葛塘河,南临规划道路,西至大厂污水处理厂
图片尺寸552x396
厦门建发葛塘g25地块区位图
图片尺寸656x1000
1)交通方面,地铁s8号线葛塘站,地铁11号线葛塘站(规划),南京北站
图片尺寸678x388
重磅消息葛塘将打造商住综合体最新效果图曝光
图片尺寸1080x922
2016101504
图片尺寸481x448
总揽金425亿元保利里城底价拿下中央商务区涉宅地葛塘两涉宅地成功触
图片尺寸800x594
葛塘56号地块拆迁安置房规划有变
图片尺寸1080x711
【大厂楼市】葛塘g11地块规划出炉!将打造14栋高层住宅!
图片尺寸640x672
南京葛塘厦门建发g25地块规划出炉
图片尺寸873x600
重磅消息葛塘将打造商住综合体最新效果图曝光
图片尺寸1080x1022
重磅消息g57地块规划建设大厂葛塘片区改善房附最新效果图
图片尺寸528x296