葡萄酒厂平面图

大漠圆场地布局 银川大漠圆葡萄酒业有限公司场地平面图
图片尺寸372x493
17酒厂规划图
图片尺寸700x420
葡萄酒设备布置流程cad图纸dwg图纸
图片尺寸1203x742
a1-酒厂总平面图
图片尺寸820x580
a1-发酵区平面布置图本设计的依据葡萄酒酿造工艺学相关知识和文献
图片尺寸774x557
【酒厂酿酒设备】生产车间平面图酿酒技术很重要.
图片尺寸700x400
a1-全厂平面布置图
图片尺寸798x551
房山这里的葡萄酒可以尽情泼洒!截止本周末!
图片尺寸640x454
【宁夏】某御坊葡萄酒庄全专业设计施工图
图片尺寸858x608
关键词: 散热器供暖平面图地下车库通风平面图防排烟
图片尺寸1600x1280
葡萄酒车间平面布局图
图片尺寸820x358
白葡萄酒生产工艺流程
图片尺寸675x402
2019用白酒蒸馏器开个酒厂厂房怎样布局更省钱
图片尺寸700x420
浙江-瑞义耒酒庄-红酒酒庄
图片尺寸561x800
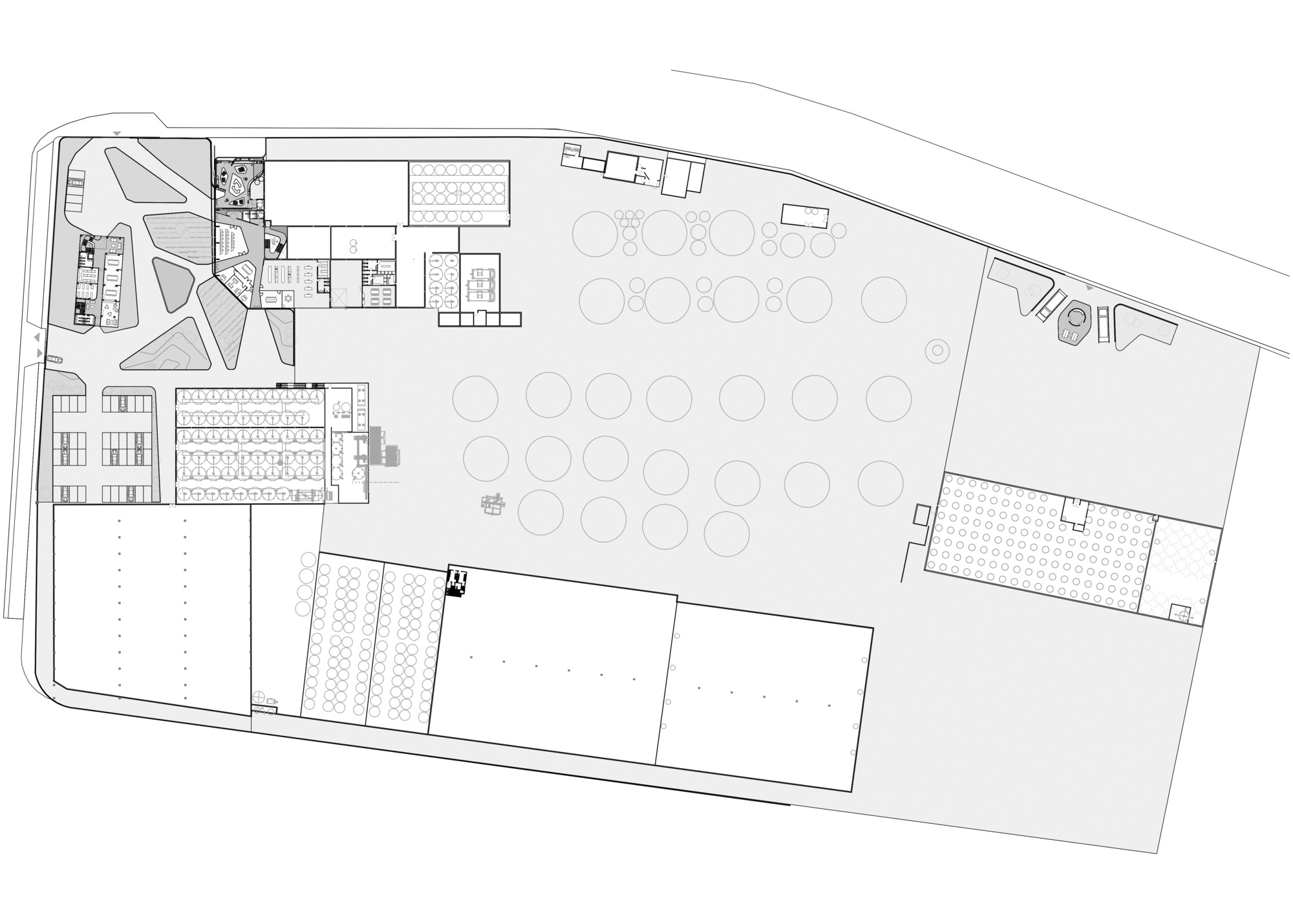
总平面图▲ 平面图▲ 立面图▲ 剖面图▲ 剖面图▲ 商店平面图
图片尺寸2000x1429
stobi 葡萄酒厂 / aleksandar radevski viktorija stavrik,平面图
图片尺寸1415x1000
葡萄酒厂区平面图cad
图片尺寸400x300
合作葡萄酒
图片尺寸868x617
酒厂平面布置图
图片尺寸820x428
怎样开酒厂如何开酒厂开个小酒厂需要雅大哪种酒厂设备
图片尺寸700x400