血库设计平面图

输血科布局专业知识宣讲培训课件_第4页
图片尺寸1500x1125
设计中应从建筑的平面布局,室内装修以及配套设施等方面,提供安静
图片尺寸1024x687
本周四无偿献血等你来!(第476期)
图片尺寸698x326
输血科平面图
图片尺寸920x651
供应移动献血屋,献血车,献血房车,采血房车,采血屋,个性化定制
图片尺寸680x961
展开全部 是什么类型的样本库?血库?还是组织库?
图片尺寸856x436
检验科,输血科平面图及撤离路线
图片尺寸1001x388
血站实验室质量管理与检查-李金明ppt
图片尺寸1080x810
献血屋
图片尺寸1087x528
血透室布局
图片尺寸922x692
新建血透室的布局平面图
图片尺寸3264x2448
试运行年底压轴大戏省三医独家上新
图片尺寸800x477
大型全血活动无偿献血策划书
图片尺寸479x308
市级中心血站实验室
图片尺寸1761x517
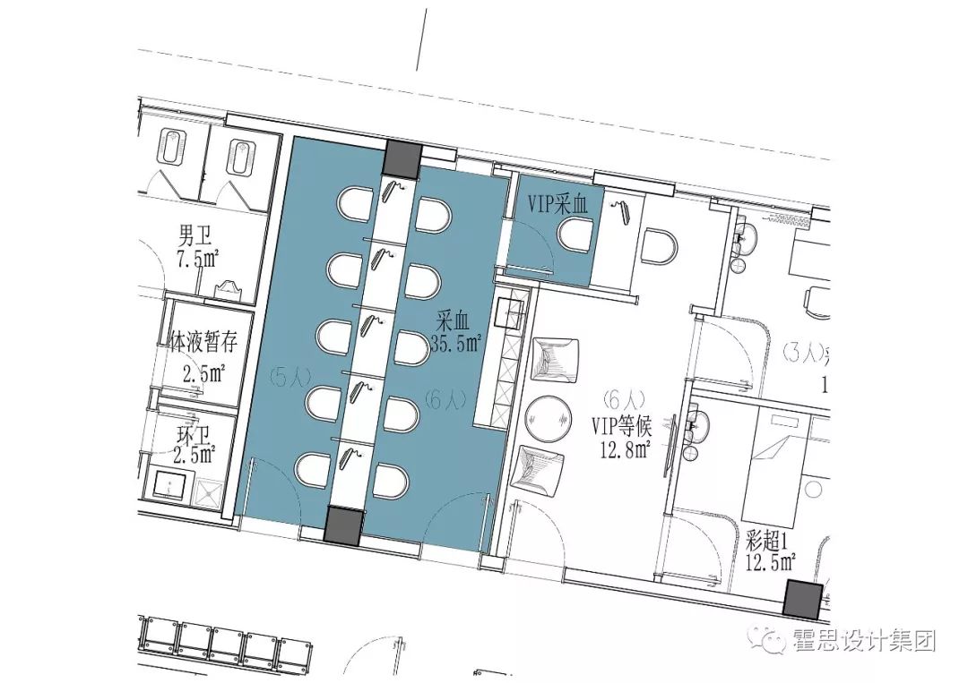
敲黑板记住这13条干货不怕做不好采血室设计
图片尺寸1080x763
血站质量控制实验室设计规划
图片尺寸560x425
长沙公共卫生中心二期建设项目血液中心实验室装修设计图
图片尺寸858x608
仓库平面设计
图片尺寸1080x810
血库占地大了,两三间房足以,反正即使
图片尺寸683x385
一种用于医院血库的闭环管理系统
图片尺寸1000x757