衡重挡土墙

衡重式挡土墙的模板怎么算?各位老师
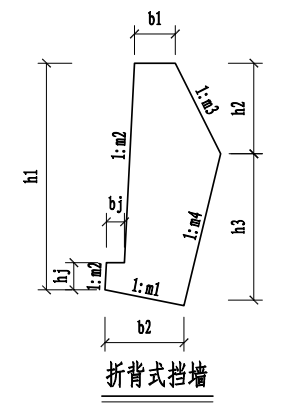
图片尺寸563x692
衡重式路肩挡土墙
图片尺寸4032x3024
一级建造师# 挡土墙 衡重式挡墙,稳固如山;精细测量,精确施工
图片尺寸295x412
什么叫衡重式挡土墙
图片尺寸1339x1200
小虎劳务施工队,四五米厚的,衡重式挡墙,素混凝土,有没有感兴
图片尺寸1438x1920
何谓衡重式挡土墙?其有何特点?
图片尺寸640x453
挡土墙的多样分类与重力式设计,附图示及实例照片
图片尺寸960x690
衡重式挡土墙是指利用衡重台上部填土的重力而墙体图片尺寸560x370

衡重式路肩挡土墙
图片尺寸600x400
重力式挡土墙施工与质量控制要点解析
图片尺寸581x369
衡重式挡土墙
图片尺寸457x329
衡重式挡土墙行为土下沉,变形缝错开,发生墙体偏移.请问有影响吗?急!
图片尺寸921x691
图为10月2日,西秀区新场至岩腊农村道路左侧衡重式c20片石砼挡墙施工
图片尺寸600x337
17j008挡土墙(重力式,衡重式,悬臂式)
图片尺寸1132x806
支路建设衡重式挡土墙专项施工方案
图片尺寸760x570
衡重式挡土墙效果图
图片尺寸704x352
右侧k0 268~k0 280衡重式挡墙墙身立模
图片尺寸2000x2667
国标图集 17j008挡土墙(重力式,衡重式,悬臂式)17j008代替04j008 中国
图片尺寸800x800
挡土墙(重力式,衡重式,悬臂式)17j008
图片尺寸800x800
衡重式高挡墙外倾怎么处理
图片尺寸819x681