衬套装配图

a4衬套pdf
图片尺寸800x1132
主浇道衬套pdf
图片尺寸800x1132
夹具 衬套
图片尺寸654x830
衬套
图片尺寸820x580
西装定制知识:⑨张图带你了解西装的麻衬.西装定制有分:全麻衬 - 抖音
图片尺寸1440x1920
衬套.dwg
图片尺寸1200x800
无油衬套图纸sw150872-08-13
图片尺寸893x1263
不锈钢衬套加工
图片尺寸806x515
衬套2
图片尺寸820x1159
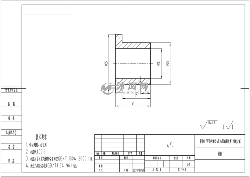
零件衬套pdf
图片尺寸800x568
衬套63
图片尺寸820x1159
一种连杆衬套装配装置-爱企查
图片尺寸581x800
k471-衬套的加工工艺及钻Φ6孔夹具设计带图纸_装配图网
图片尺寸800x568
衬套 零件图
图片尺寸791x596
紧定衬套
图片尺寸661x461
jj5138-衬套注射成型及塑料模具设计【含ug三维工件图】-模具设计-龙
图片尺寸1100x786
带铜衬轴套零件图pdf
图片尺寸800x566
a4-连杆小头衬套.dwg
图片尺寸1200x800
某主轴衬套cad节点构造施工图纸
图片尺寸610x861
衬套图
图片尺寸552x791