装修施工电路图怎么画

东方御花园-四居室样板房室内装修施工图
图片尺寸1600x1280
「装修」装修房子时,有哪些验收竣工标准!
图片尺寸2720x1815
图1-6 四室两厅家庭电气装饰两厅线路
图片尺寸1246x1374
装修布线装修电力布线图
图片尺寸1922x1331
请电工帮我看下家装电路图
图片尺寸1147x794
样板间装修电气施工图
图片尺寸1277x830
家庭装修电路图,家居装修电路图,装修工程电路图,家庭装潢电路图应该
图片尺寸690x550
家装电气施工图作为家装电气工程施工和结算的依据,其所表达的内容
图片尺寸1567x1280
高分求装修电路图
图片尺寸450x374
现代家庭装修led筒灯 射灯常用的尺寸规格以及安装
图片尺寸1654x2339
家庭装修 家装服务 求三室两厅家装设计图施工图 附件
图片尺寸2362x1700
图1-8 灯,开关平面图
图片尺寸1556x863
样板间装修电气施工图
图片尺寸1294x819
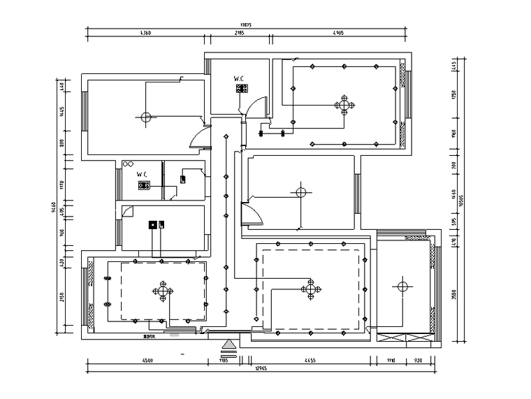
混搭风格3室2厅3室2厅1厨2卫套房装修施工图
图片尺寸760x561
【格调装饰】水电工程装修怎样去验收 -格调小郑 -搜房博客
图片尺寸630x545
现代简约风格复式别墅设计施工图(附效果图)-住宅装修-筑龙室内设计
图片尺寸931x603
家装施工cad图纸 > 室内装修2个户型cad平面电路图
图片尺寸1024x484
家装电路布线施工详细内容浅析图文结合
图片尺寸860x563
现代风格三居室住宅设计施工图(附效果图)-住宅装修-筑龙室内设计论坛
图片尺寸760x571
三室一厅电路布线图例
图片尺寸600x429