西厨平面图

向厨房设备简介
图片尺寸950x750
沈戴华|生活从这里开始
图片尺寸640x489
深圳开一家西餐厅需要购买哪些厨房设备
图片尺寸720x506
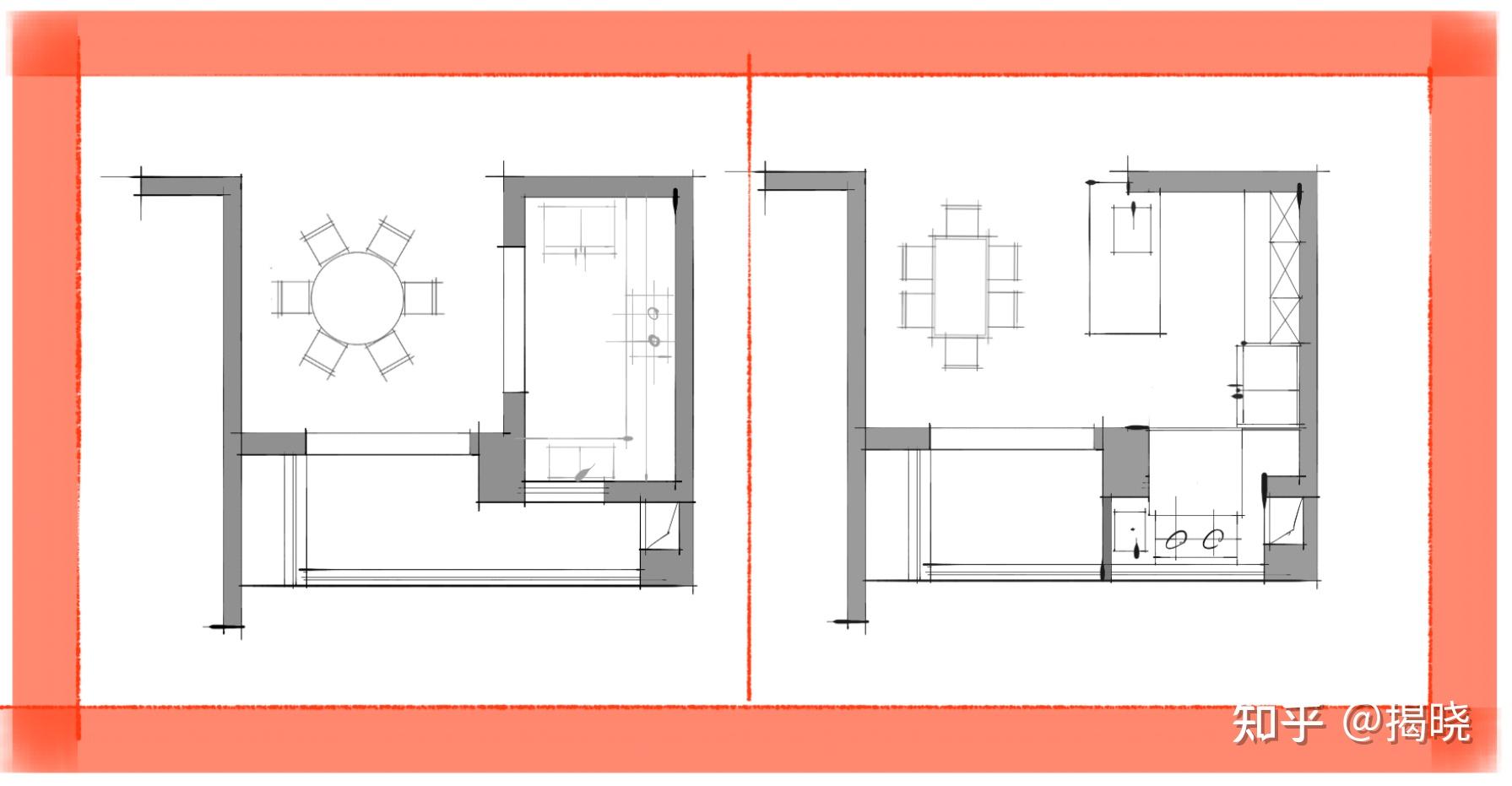
对比#室内设计 #户型改造 #户型优化 #户型 #装修设计 #平面优化
图片尺寸1080x918
怎样合理规划厨房空间和选择配套设备?
图片尺寸623x456
中西分离厨房平面图
图片尺寸549x414
中西一体化的社交厨房_网易家居图库
图片尺寸2696x2248
向西餐厅厨房设计—洗消区
图片尺寸1000x647
带中岛的厨房布局
图片尺寸1080x1439
您准备了四个功能间的设备编号和设备名称:(图 1某西餐厅平面设计图)
图片尺寸805x693
8种厨房合理尺寸表75看了装修少花冤枉钱
图片尺寸1080x1225
本资料为别墅中西式厨房装修设计cad施工图 别墅中厨平面图
图片尺寸1600x1280
当中厨遇上西厨这才是最适合中国人的厨房设计
图片尺寸1080x458
向厨房设备行业特惠价是否是美丽的谎言
图片尺寸1000x672
厨房越来越流行中西厨分离设计了!中厨做饭,西厨喝茶,惬意极了
图片尺寸640x564
向西餐厅厨房设计—面包房
图片尺寸1000x734
达美中心西餐厅厨房工程设计
图片尺寸1736x606
如何设计中西双厨的厨房
图片尺寸1791x931
求大神们优化下餐厅_平面研讨_室内设计联盟 - powered by discuz!
图片尺寸1335x719
厨房有哪些比较合理的布局设计可以作为装修参考
图片尺寸720x405