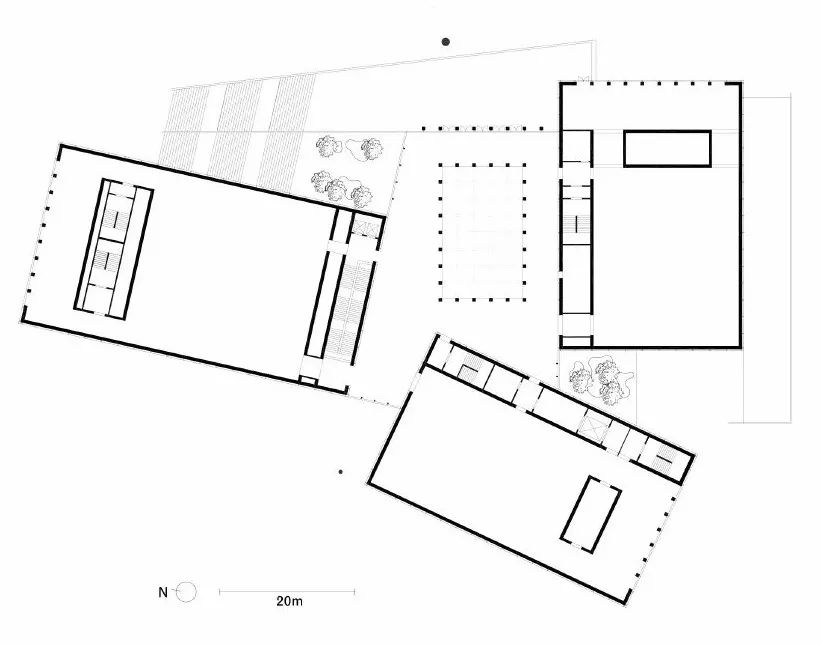
西岸美术馆平面图

上海"西岸美术馆"已正式向公众开放——戴卫·奇普菲尔德设计
图片尺寸878x634
后工业场址中的美术馆上海西岸美术馆莫万莉时代建筑2020年第1期
图片尺寸538x429
分享上海西岸美术馆已正式向公众开放戴卫奇普菲尔德设计
图片尺寸821x646
西岸美术馆 / david chipperfield architects,平面图
图片尺寸1484x1000
西岸美术馆 / david chipperfield architects,平面图
图片尺寸1537x1000
韵外之致——大舍建筑设计事务所的龙美术馆西岸馆
图片尺寸600x329
用艺术打开三座魔盒西岸美术馆开放一周年啦
图片尺寸966x510
上海西岸美术馆建筑设计davidchipperfieldarchitects
图片尺寸1828x1227
喜报|西岸美术馆的展览获国家级奖项啦!
图片尺寸640x725
二层平面图 first floor plan戴卫·奇普菲尔德建筑事务所美术馆建筑
图片尺寸1280x1810
韵外之致——大舍建筑设计事务所的龙美术馆西岸馆
图片尺寸600x453
plan二层平面图 first floor plan戴卫·奇普菲尔德建筑事务所美术馆
图片尺寸1280x1810
v i p 贵 宾 服 务实 用 信 息▲西岸博览会场馆地图交通:西岸艺术
图片尺寸1080x621
plan二层平面图 first floor plan戴卫·奇普菲尔德建筑事务所美术馆
图片尺寸1280x1810
上海龙美术馆西岸馆 / 柳亦春
图片尺寸640x356
上海美术馆平面图,广州美术馆_大山谷图库
图片尺寸2000x920
龙美术馆西岸馆 / 大舍建筑,平面图
图片尺寸1414x1000
大卫奇普菲尔德新作上海西岸美术馆
图片尺寸1990x856
龙美术馆西岸馆 / 大舍建筑,平面图
图片尺寸1414x1000
西岸美术馆 / david chipperfield architects,总平面图
图片尺寸794x1000