设备安装大样图

设备安装图纸.设备安装设计#工程人 #施工现场实拍 #专业的
图片尺寸1260x2720
无线ap,紧急报警,红外入侵,防雷等各种弱电系统安装大样图
图片尺寸3062x2160
机房工程常用的cad安装大样图,含防雷接地
图片尺寸3840x2160
监控立杆,室外设备箱及升降柱等弱电系统安装大样图
图片尺寸3268x2160
白灰回转窑布袋除尘器装置安装现场
图片尺寸1044x1952
数据中心机房施工大样图,图片均来自数据中心工程设计与安装标准
图片尺寸2160x3840
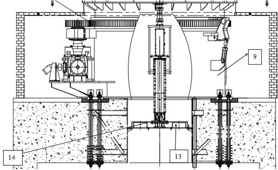
一种连铸机大包回转台设备安装方法
图片尺寸1102x673
这套弱电机房工程安装大样图素材,太全面了!
图片尺寸3840x2160
医护对讲系统cad安装大样图
图片尺寸1035x699
蜗牛风机安装示意图
图片尺寸1000x1035
系统安装大样图,设计说明及设备接线表
图片尺寸1080x679
最全面的视频监控系统安装大样图含各类监控立杆
图片尺寸3840x2160
催化燃烧设备rto安装
图片尺寸1242x862
上海连成水泵安装图
图片尺寸1440x2036
设备素描.环保设备铅笔简画,铅笔素描#设计制造 #全套施工图
图片尺寸2160x2476
cad代画工程设备布局图.cad代画设备布局图,工业设备,机
图片尺寸1080x1560
1 适用范围适用于一般民用建筑中的落地式风机箱安装2 大样图3 说明1)
图片尺寸779x1095
中央空调末端设备,风机盘管安装和接管阀门
图片尺寸1080x980
室外监控设备安装大样图弱电cad素材
图片尺寸539x812
板式换热器安装节点大样图
图片尺寸400x300