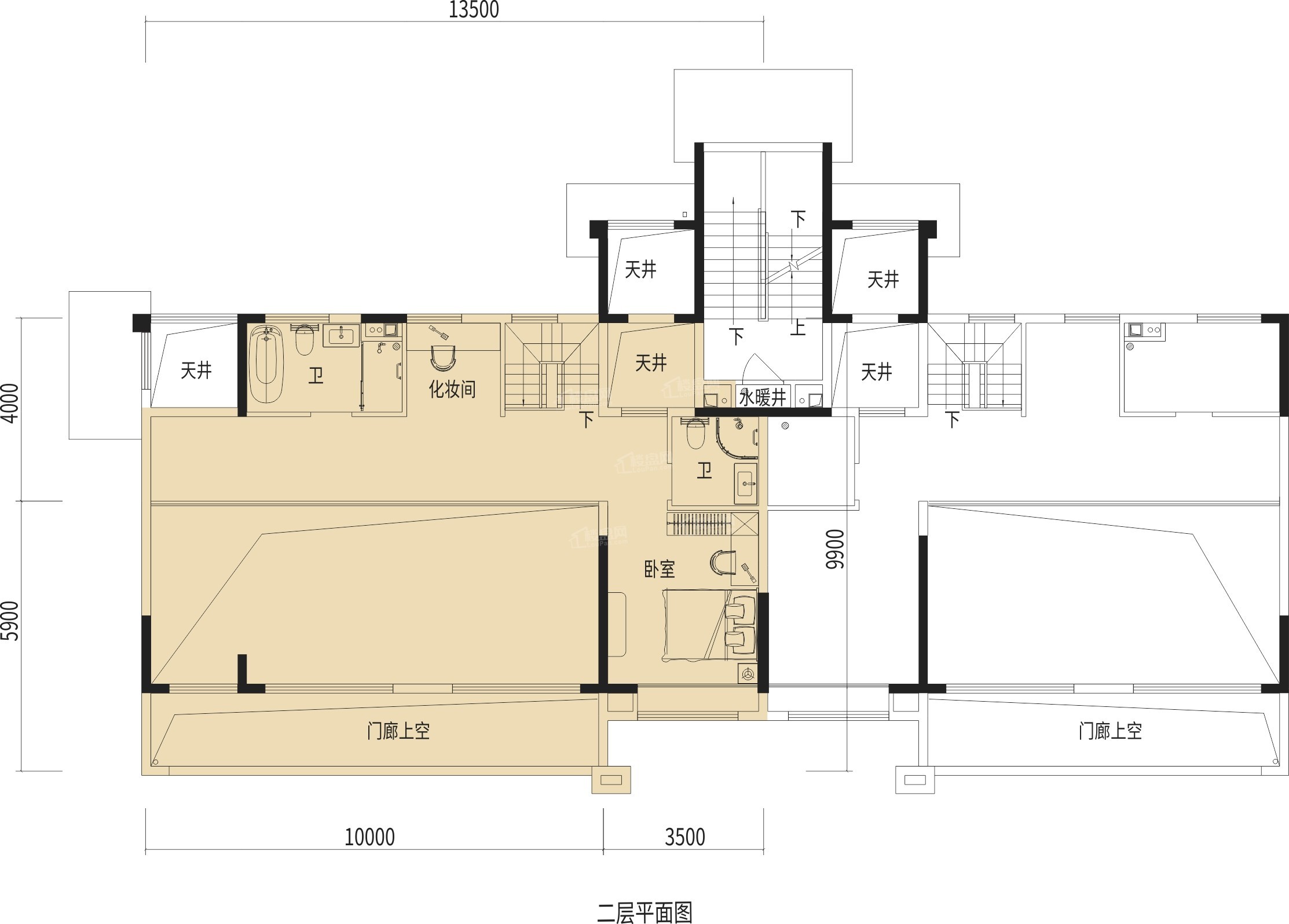
诺希央墅 户型图

中海央墅
图片尺寸900x1043
福清诺希央墅新中式风格
图片尺寸641x672
诺希央墅-副本-副本
图片尺寸800x800
福清诺希央墅-副本
图片尺寸800x800
央墅牡丹园.#户型图 #紫金山#央墅#牡丹园 - 抖音
图片尺寸1440x2804
中海央墅洋房e户型6 1f
图片尺寸991x1542
西安碧桂园央墅售楼处电话→在售均价→百科详情→容积率→户型
图片尺寸1080x1310
远达鹭湖宫·央墅户型图
图片尺寸1178x1600
正黄金域央墅
图片尺寸353x530
央墅二期 洋房平层c户型
图片尺寸643x773
联排别墅!上下六层!独门独户!带前后花园!随时看房
图片尺寸900x2000
碧桂园央墅户型配套解读_楼盘价值分析报告-西安楼盘网
图片尺寸2226x1596
中海央墅户型图
图片尺寸600x900
央墅二期 洋房平层b户型
图片尺寸607x715
一套二环南中海国际社区铂宫央墅!
图片尺寸800x600
央墅蓝卡斯特 精装好房 南北通透 超低密度 带电梯 商品房
图片尺寸599x449
央墅二期 洋房复式c户型
图片尺寸1206x673
中海国际社区央墅
图片尺寸244x318
这个户型我是不会买的,虽然户型方正,各房间布局也合理,还是四室的,但
图片尺寸1440x937
央墅二期 洋房复式d户型
图片尺寸1209x686