豪华套房 平面图

豪宅样板间
图片尺寸1280x876
豪华套房平面图
图片尺寸1118x886
高级套房 (superior suite)
图片尺寸2368x1775
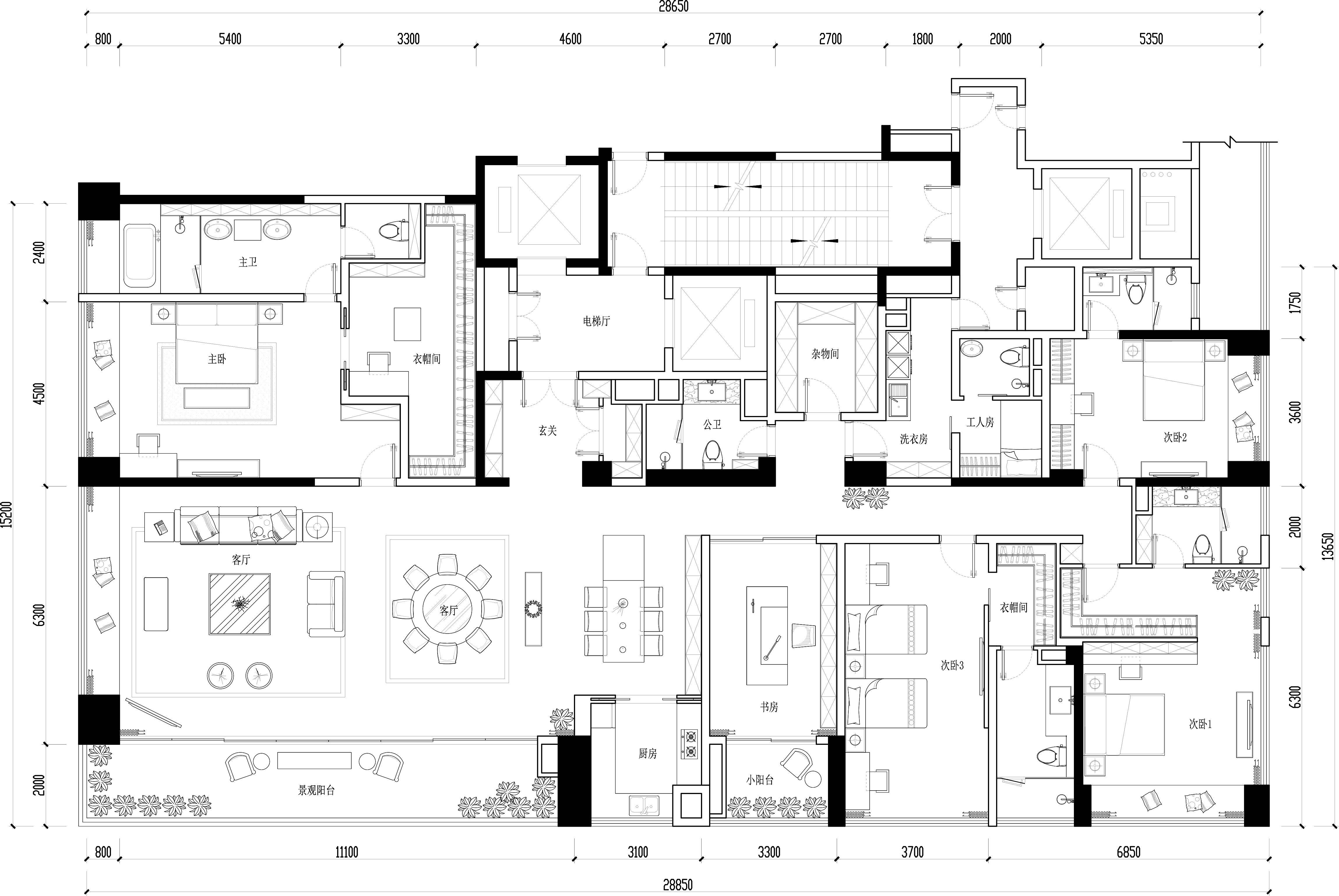
豪华套房设计思考:占用四个开间的豪华套房,要同时瞒住居住,用餐,会议
图片尺寸1080x763![[北京]邱德光-知名地产如园顶层600㎡豪宅样板间深化](https://i.ecywang.com/upload/1/img2.baidu.com/it/u=2816471121,3602446566&fm=253&fmt=auto&app=138&f=JPEG?w=500&h=354)
[北京]邱德光-知名地产如园顶层600㎡豪宅样板间深化
图片尺寸3308x2340
单卧室豪华套房 (1-bedroom luxury suite)
图片尺寸1600x878![[分享]豪华套房施工图设计资料免费下载](https://i.ecywang.com/upload/1/img1.baidu.com/it/u=1124926587,1195541561&fm=253&fmt=auto&app=138&f=JPEG?w=640&h=480)
[分享]豪华套房施工图设计资料免费下载
图片尺寸640x480
内容简介 (12张) 包括:平面图,天花图,地坪图,立面索引图,套房立面
图片尺寸560x420
742f总统套房家具平面布置图
图片尺寸1600x1280
总统套房设计平面图
图片尺寸3600x2652
改造后平面布置原始平面布置
图片尺寸4596x3076
酒店套房平面布置图合集
图片尺寸1200x900
恒大首府
图片尺寸3275x2887
【第八期-住宅平面优化】一个480m顶层豪宅 其余优秀作品_35.jpg
图片尺寸3000x2055
总统套房平面设计图
图片尺寸1504x1228
徐汇重磅豪宅淮海路一号精装大宅现房发售丨面积34942
图片尺寸1080x857
590m (更新平面)_c型豪华套房
图片尺寸1883x2400
酒店行政豪华套房设计
图片尺寸1080x900
标准套房平面图.jpg
图片尺寸4133x2923
二层经典布局,楼梯上来走向家庭厅,和阳台联系在一起;1间豪华主卧套房
图片尺寸2480x2598