跌水平面图

本工程为某小型跌水施共设计图,包含平面图,立面图,剖面图等,图纸内容
图片尺寸610x861
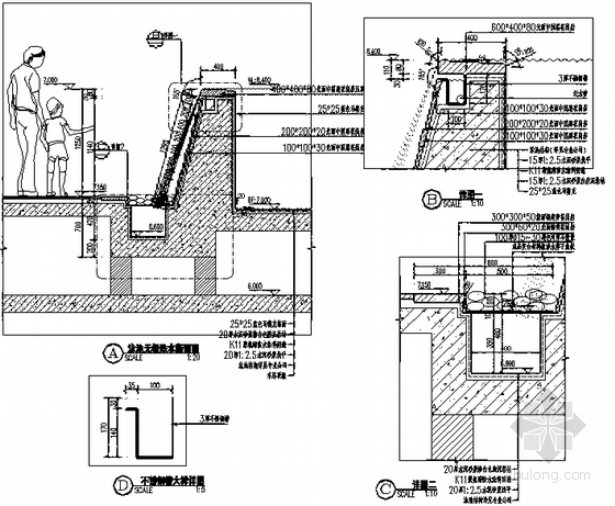
跌水设计某公园跌水景观大样设计cad图纸
图片尺寸295x268![[分享][资料]17套假山瀑布图纸集(cad)](https://i.ecywang.com/upload/1/img0.baidu.com/it/u=890221685,1003910869&fm=253&fmt=auto&app=138&f=JPEG?w=707&h=500)
[分享][资料]17套假山瀑布图纸集(cad)
图片尺寸4854x3432
景观细部施工图—旱跌水叠泉施工图设计
图片尺寸760x529
跌水平面图
图片尺寸820x531
叠泉跌水平面图纸
图片尺寸1024x596
自然石跌水
图片尺寸1000x830
假山跌水水景平面图
图片尺寸1168x740
入口广场跌水平面1
图片尺寸1600x1280
小型农田水利工程设计图集--6 跌水
图片尺寸820x566
景石跌水建筑布置参考详情图
图片尺寸610x861
平台跌水施工图
图片尺寸520x360
1148园林景观跌水水景施工图
图片尺寸4678x3308
跌水详图设施图
图片尺寸610x432
三十二个跌水水景墙景观小品设计施工图
图片尺寸610x861
某地瀑布喷泉平面cad图
图片尺寸610x432
无极跌水详图
图片尺寸560x461![[分享]跌水施工图纸资料下载](https://i.ecywang.com/upload/1/img0.baidu.com/it/u=2293487741,113184948&fm=253&fmt=auto&app=138&f=JPEG?w=560&h=374)
[分享]跌水施工图纸资料下载
图片尺寸560x374
园林景观雕塑跌水景观施工图
图片尺寸700x473
跌水喷泉平面图
图片尺寸1000x721