路灯基础做法

6米路灯基础图2
图片尺寸920x1302
太阳能路灯基础做法详图cad施工图灯具立面图庭院灯图纸设计说明
图片尺寸2550x3300
15米路灯基础图
图片尺寸920x1302
太阳能路灯施工技术规范有哪些
图片尺寸1000x723
路灯基础立面图.png
图片尺寸760x574
6米7米太阳能路灯 需要多大的地笼基础?
图片尺寸707x989
8m路灯基础示意图
图片尺寸657x1055
4路灯基础大样图
图片尺寸760x570
路灯基础图和电缆井施工_第2页
图片尺寸920x1302
15米路灯杆预埋件基础图
图片尺寸3259x2353
6路灯基础做法详图
图片尺寸760x570
路灯基础内预埋铁件 套什么定额?
图片尺寸1244x797
太阳能路灯基础地笼规格
图片尺寸920x1302
路灯基础安装图
图片尺寸719x494
供应路灯预埋件路灯地笼太阳能路灯基础笼路灯基础施工安装
图片尺寸544x660
路灯基础
图片尺寸774x821
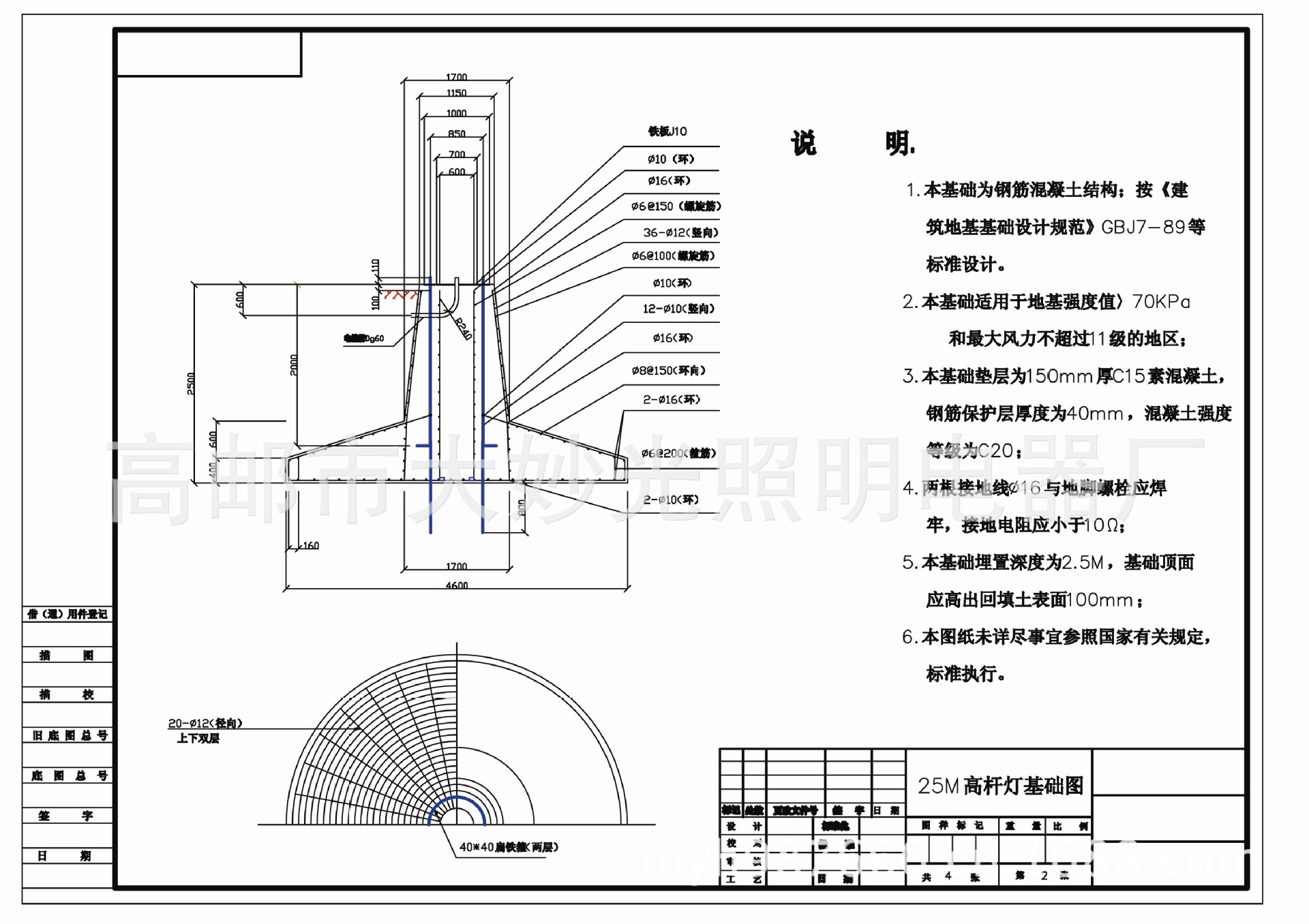
高杆灯厂家路灯灯杆 专业生产户外照明路灯灯杆 led高杆灯灯杆
图片尺寸1920x1356
6米路灯基础图
图片尺寸566x436
路灯基础大样图
图片尺寸560x358
太阳能路灯基础纵向图1.
图片尺寸713x471