路缘石施工图

宁波江东南路沿江绿地公园全套施工图(市重点工程) 排水槽与路沿石相
图片尺寸2201x1701
路缘石铺装做法详图
图片尺寸610x432
砼路缘石15cm*37cm按照一般规范,该露出路面多少合适(路面为20cm砼
图片尺寸780x1040
人行道路缘石详图
图片尺寸760x571
路缘石做法
图片尺寸1600x1310
某路缘石做法详细cad参考图
图片尺寸610x861
请问"乙2型混凝土路缘石,3cm水泥砂浆卧底"怎么算量?非常感谢!
图片尺寸760x660
某路缘石做法详细cad参考图
图片尺寸610x861
道路路缘石做法标准(2017年最新资料)
图片尺寸1134x852
路沿石转平沿石构造做法路侧石路缘石道牙cad施工图大样图轴测图
图片尺寸800x800
路缘石大样图.jpg
图片尺寸1200x900
路缘石整治安装大样图
图片尺寸526x503
道路路缘石做法标准(2017年最新资料)
图片尺寸1090x897
分享路缘石做法详图资料下载
图片尺寸532x536
精选路缘侧石设计施工图(25套)
图片尺寸1600x1280
路缘石大样图
图片尺寸496x302
道路路缘石做法标准(2017年最新资料)
图片尺寸1086x874
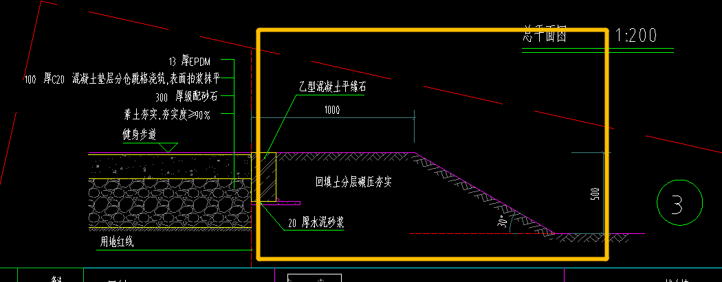
请问平缘石右侧的土方需要算么
图片尺寸1050x411![[分享]侧向进水路缘石大样资料下载](https://i.ecywang.com/upload/1/img0.baidu.com/it/u=3846994947,2339236693&fm=253&fmt=auto&app=138&f=JPEG?w=500&h=513)
[分享]侧向进水路缘石大样资料下载
图片尺寸520x533
这是市政城市道路的图纸想请问下如下图所示的混凝土路缘石乙1型2型3
图片尺寸1231x812