轴网是什么

各位前辈,请问两个轴网是什么意思,该怎么画呢
图片尺寸1920x1080
轴网双排标注是什么意思
图片尺寸1088x731
弧形轴网
图片尺寸1436x826
轴网布置
图片尺寸590x426
广联达建立轴网的两种方式/广联达建模教学 教程/广联达土建计量2025
图片尺寸1440x1080
天正建筑轴网标注尺寸怎么改啊
图片尺寸997x695
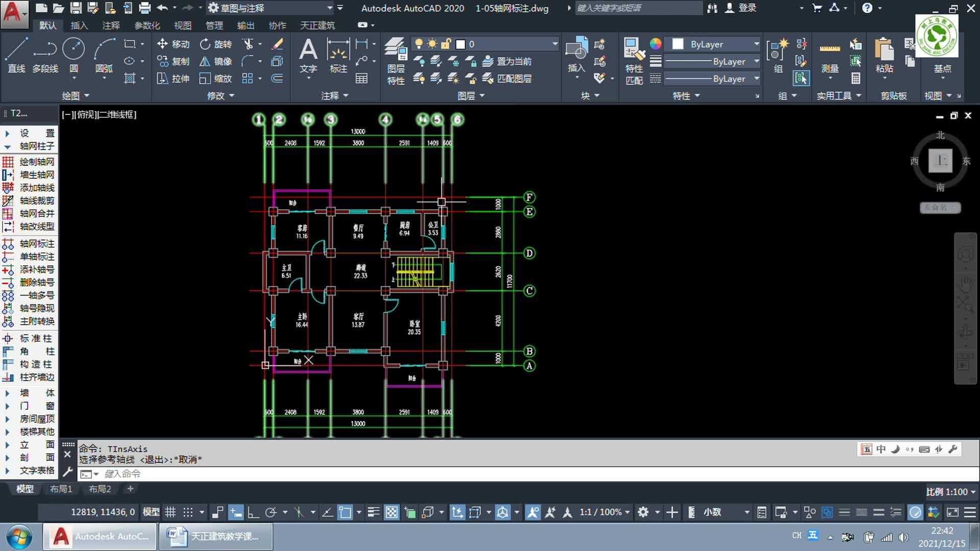
天正建筑怎么进行轴网标注标注轴号时要注意什么10分钟搞懂它
图片尺寸1920x1080
为什我三维立体观察,轴网怎么和导入的图纸变成这样了?什么原因这是
图片尺寸936x384
轴网在不同楼层的显示问题.1,轴网在楼层平面1
图片尺寸817x540
在画板受力筋时弹出请选择参照轴网是什么原因
图片尺寸1080x1440
住宅建筑如果每道墙,填加轴网后会很乱,怎么办
图片尺寸2592x1936
老师请问一下轴网能提取但无法提取轴号及尺寸标注是什么原因
图片尺寸691x483
这个工字钢间距只注明了,按轴网间距布置,请问什么是轴网?
图片尺寸2016x1512
筏板底面主筋三维看不见是什么问题怎么锁定参照轴网求老师指教已计算
图片尺寸1500x2000
请问老师:布置的板与轴网偏离是什么原因?需要如何修改?
图片尺寸767x548
轴网在不同楼层的显示问题
图片尺寸893x760
请参考下图以获得更直观的理解.2. 轴网向心
图片尺寸962x499
天正建筑怎么进行轴网标注?标注轴号时要注意什么?10分钟搞懂它
图片尺寸1280x720
cad如何使用多线工具修改墙体?
图片尺寸771x585
最近挖到宝了!就是这个支轴网链真的太绝了!
图片尺寸720x720