远洋万玥府规划

沙河口区洋房远洋·万玥府规划公示 将建设6栋5至11层住宅
图片尺寸850x655
远洋万玥府规划方案进入公示期 有异议可以提
图片尺寸640x436
远洋万玥府
图片尺寸1400x933
远洋万玥府
图片尺寸690x976
大连远洋万玥府全维度测评 | 寻找优选好房
图片尺寸640x484
远洋万玥府70年产权跃墅抢藏阳光跃墅
图片尺寸1792x828
远洋万玥府70年产权跃墅抢藏阳光跃墅
图片尺寸1792x828
远洋万玥府项目位于沙河口区富民路马栏小学对面
图片尺寸1400x637
远洋万玥府
图片尺寸632x288
远洋万玥府
图片尺寸1911x1600
【中建·玖月府】项目户型规划主要面向刚需和改善需求的家庭,如果按
图片尺寸660x748
上海远洋万玥府楼盘信息:远洋万玥府楼盘开盘交房信息_销控信息_新闻
图片尺寸1016x762
远洋万玥府效果图37
图片尺寸1911x1600
大连「远洋◆万玥府」售楼处电话:400-100-1299转接 4444【官网】售楼
图片尺寸1400x933
大连远洋万玥府监理竣工销号
图片尺寸600x273
远洋万玥府新房
图片尺寸1000x800
首页:大连远洋万玥府售楼处_#@楼盘详情_远洋万玥府售楼处官方欢迎您
图片尺寸845x675
中建·玖玥府,供应面积段为79-170平3-4居,共规划19栋住宅楼,8-15层的
图片尺寸1080x608
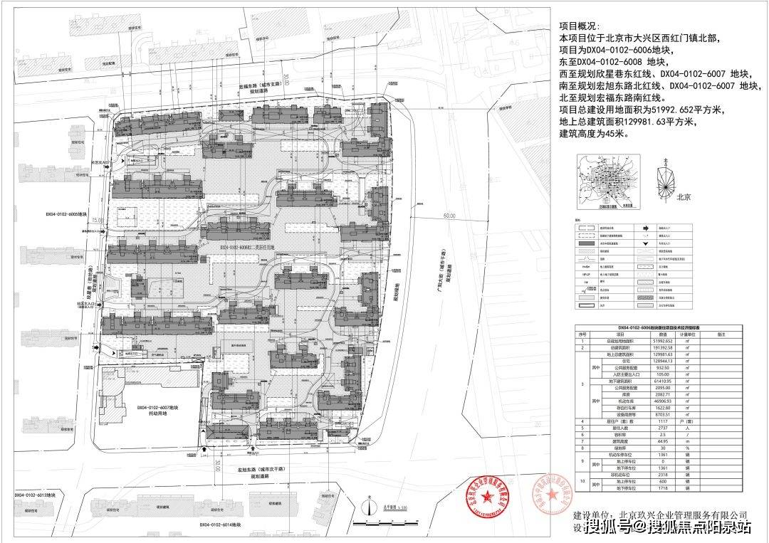
小区共规划了18栋楼,1117户,容积率2.5,车位配比1:1.
图片尺寸1080x763
远洋万玥府70年产权跃墅抢藏阳光跃墅
图片尺寸1792x828