道床结构

钢弹簧浮置板道床结构示意图
图片尺寸690x289
道岔的类型和结构
图片尺寸918x688
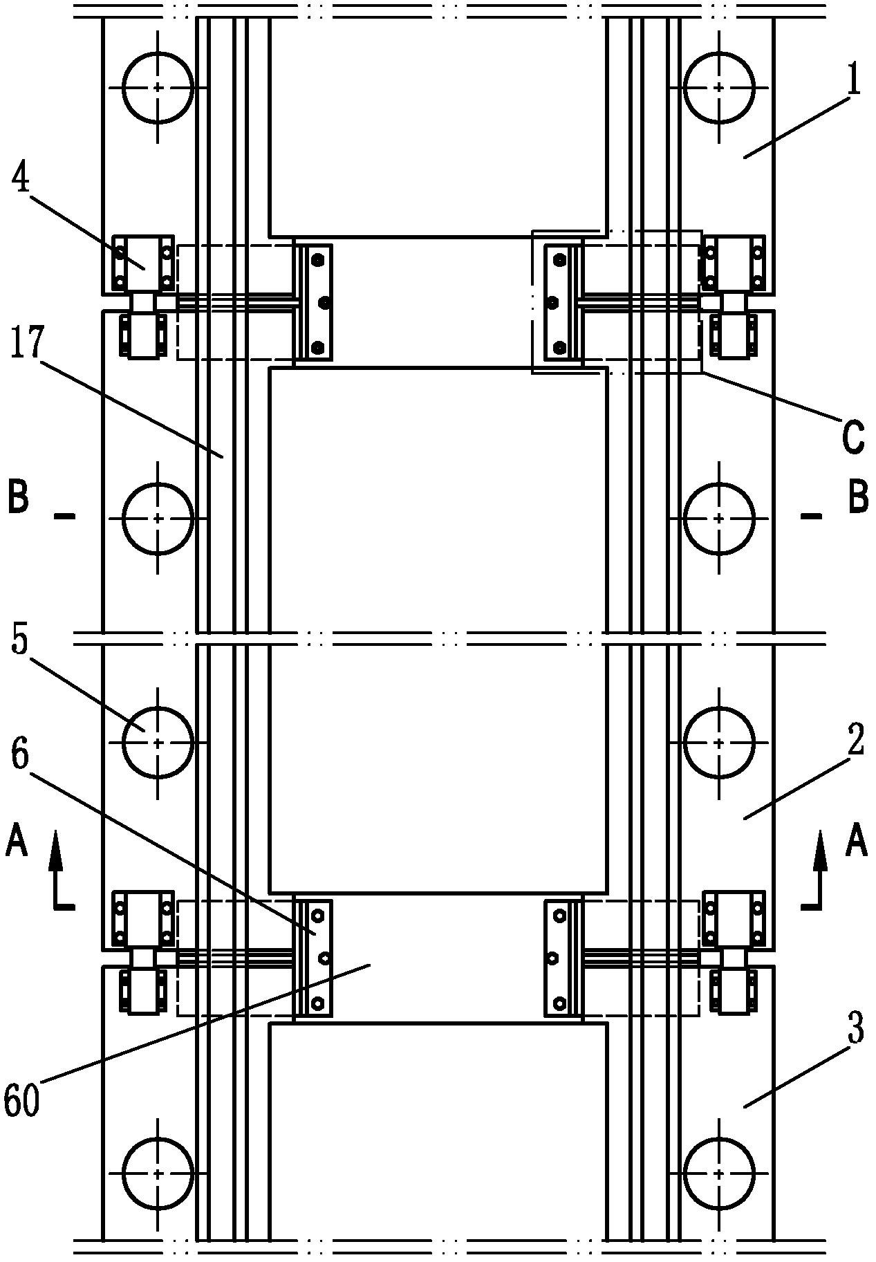
一种预制式浮置板道床-爱企查
图片尺寸1267x1825
一种带有异形调高垫板的地铁高架线轨底坡处理道床结构的制作方法
图片尺寸444x407
摘 要:预制式钢弹簧浮置板道床结构可解决特殊减振地段道床要求高
图片尺寸500x364
背景技术:上海市地铁9号线设计采用新型预制轨道板道床结构,借鉴和
图片尺寸1000x484
一种装配式绝缘道床结构的制作方法
图片尺寸443x361
一种适用于铁路隧道减震降噪的组合预制道床
图片尺寸443x278
钢弹簧浮置板道床示意图
图片尺寸800x443
一种城市轨道交通用弹性长轨枕道床
图片尺寸1824x988
整体道床
图片尺寸576x202
整体道床.jpg
图片尺寸760x571
crtsⅠ型板式无砟轨道道床施工安全
图片尺寸920x690
浮置板整体道床构造模型及施工工艺
图片尺寸2598x1299
61道床是指路基之上,轨枕之下的部分.1.概念:线路轨道(四)
图片尺寸980x504
轨道交通的地下线的预制板式道床
图片尺寸1000x750
弹性道床结构制造技术
图片尺寸963x687
整体式道床
图片尺寸1001x688
原因竟是它···_道床
图片尺寸416x167
矩型隧道直线段道床结构示意图
图片尺寸560x420