道观平面布局图

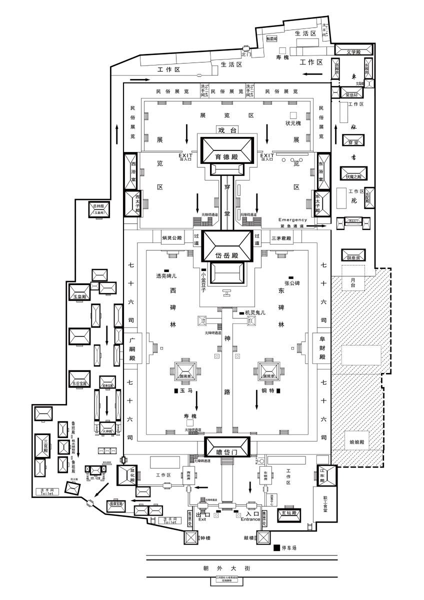
北京东岳庙
图片尺寸848x1200
北京白云观总平面图在道教中,"返朴归真"原指学道者通过修炼性命
图片尺寸436x713
大部分道观都采取这一方式;道教建筑的布局方式,主要有两种:"中国的根
图片尺寸640x575
悠悠八百年,巍巍名道观
图片尺寸640x427
江南百景图0成本复合式道观
图片尺寸1080x1440
吴真1920年的北京白云观日本最早的中国道观实地调查
图片尺寸447x672
老北京的十大道教宫观,你知道几处?你又到过几处?
图片尺寸640x914
随着道教的发展,官方设立道馆,道观之事日径增多,道教建筑由民间修道
图片尺寸503x758
原创撼龙风水论佛教寺庙与道教宫观的风水布局
图片尺寸985x526
东岳庙导游图
图片尺寸509x960
版画】1882年木刻版画《中国明清古建筑:曾经的南苑清朝皇家第一道观
图片尺寸1030x1000
某地区古代道观寺庙平面规划设计图
图片尺寸610x861
四川高峰山道观以八卦阵布局专家为你详细解读
图片尺寸640x360
成都青羊宫,被誉为"川西第一道观","西南第一丛林",也是全国著名的
图片尺寸300x377
城外的道观
图片尺寸1080x810
圆玄道观
图片尺寸653x390
手绘 导览图 道观
图片尺寸1280x1236
温州单檐框架结构仿古道观建筑设计方案图
图片尺寸610x432
八仙庵里拜神仙!_道观
图片尺寸1080x1879
鄂西游记:道教圣地武当山(三)——琼台中观和太子坡|三清殿|道观|真武
图片尺寸650x832