配水井平面图

某大型水站配水井建筑设计cad图
图片尺寸1440x1020
2 配水井布置及体型优化设计
图片尺寸928x888
大颗粒《水井》
图片尺寸2560x1703
1 系统构成井库流量补偿式配水系统主体结构包括配水井,调节水库,进水
图片尺寸888x736
这个集水井用什么画
图片尺寸1440x3200
画的集水井集水坑设计合理吗?
图片尺寸747x790
集配水井平剖图
图片尺寸819x580
给水井消能井大样图
图片尺寸1440x1020
砂井暗沟大样
图片尺寸1440x1020
砖砌排泥湿井
图片尺寸920x1302
污水处理厂项目配水井工艺设计图
图片尺寸818x488
砖砌矩形水表井
图片尺寸920x1302
配水井
图片尺寸1304x925
砂井
图片尺寸690x500
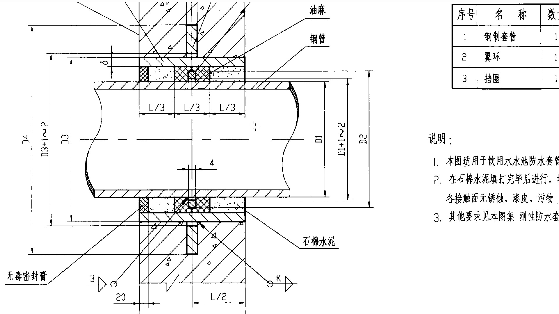
配水井施工图纸及注意事项详解
图片尺寸1920x1080
集配水井
图片尺寸653x458
地下室集水井地下室怎么布置集水井如图所示图纸是垂直的广联达有放坡
图片尺寸1003x744
这个集水井是表示37米深吗从筏板顶下去筏板顶标高566
图片尺寸1080x2340
矩形集水井怎么画
图片尺寸990x807
配水井-图一
图片尺寸411x293