酒吧平面图 布置

平面方案
图片尺寸800x596
空间平面布局
图片尺寸4000x2369
平面布置图interior design plan 以"大麦"概念转换的中央吧台区,并
图片尺寸2000x1216
机械感科技感未来感酒吧设计
图片尺寸700x933
嘉兴爱秀酒吧消费水平,ishow派对空间地址_太原ktv预订-夜总会排名
图片尺寸599x754
商业空间设计酒吧设计户型优化
图片尺寸1080x786
邂逅一间威士忌吧,像是邂逅一个雨巷里的姑娘.
图片尺寸1080x811
维纳清吧610平米-loft工业风格
图片尺寸1221x880
【清吧设计方案 】持续更新
图片尺寸1355x686
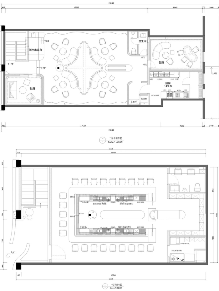
酒吧一层平面方案设计
图片尺寸1036x733
deep 酒吧空间设计方案
图片尺寸3413x2048
平面图
图片尺寸1072x683
酒吧空间
图片尺寸1648x1165
现代复古酒吧设计,沉静优雅温和 | 未见vision design
图片尺寸1260x749
一个小酒吧的平面图,请大家点评!改动后会更新上传!
图片尺寸2479x3508
酒吧怎么做设计图
图片尺寸1181x836
cos.mos 29酒吧之一层平面图
图片尺寸1260x893
个性酒吧设计平面图片
图片尺寸1200x971
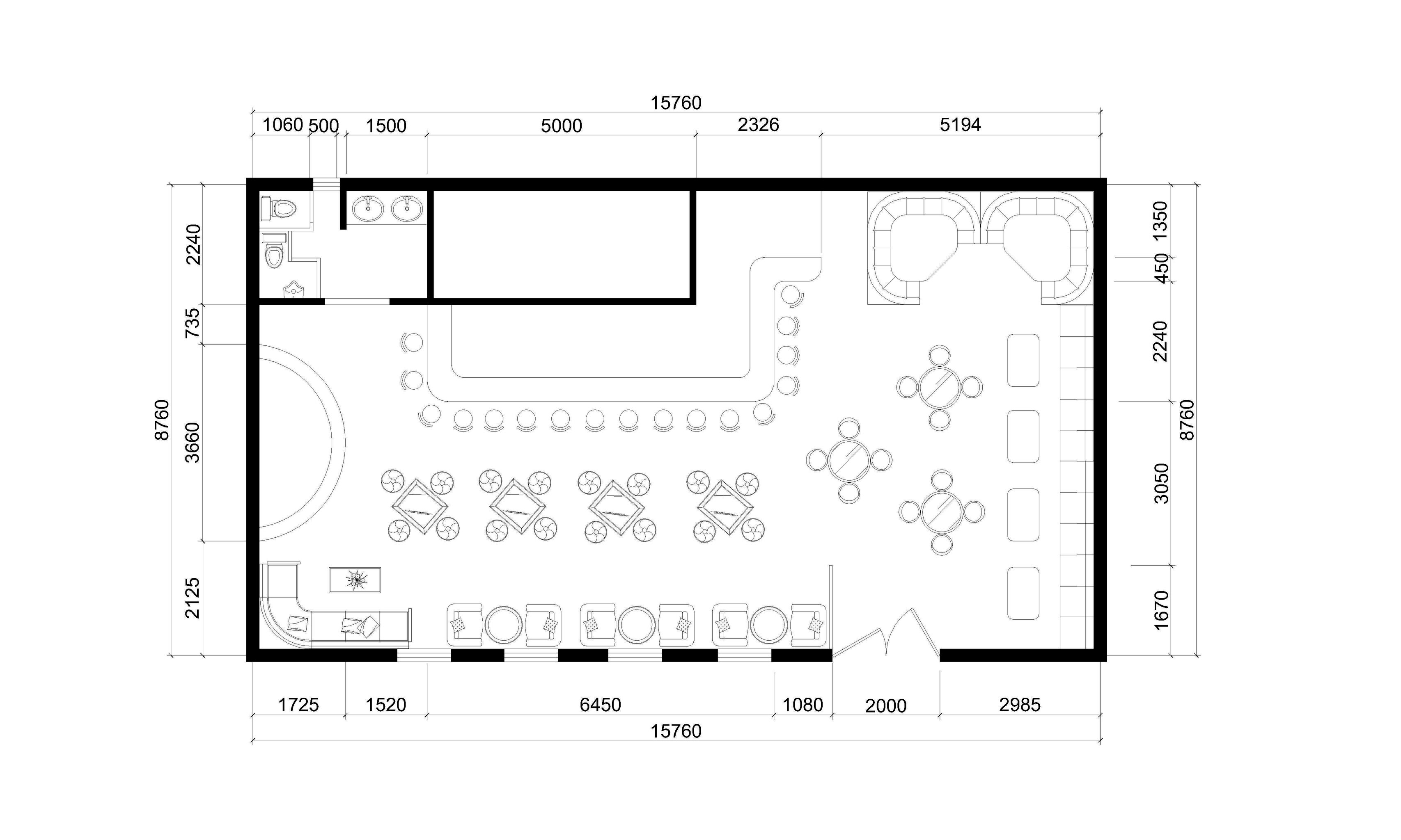
酒吧平面布置图
图片尺寸1344x1008
分享酒吧吧台图片资料下载
图片尺寸1444x1083