酒店式公寓平面

酒店式单身公寓小套房平面 13稿方案.#室内设计 #户型优化 - 抖音
图片尺寸1920x1780
南湖酒店式公寓精装2室押一付一租期灵活带健身房台球室
图片尺寸696x522
39m05 loft公寓|复式公寓平面布
图片尺寸1918x1730
绿地铂瑞酒店式公寓(青浦)首页网站绿地铂瑞酒店式公寓绿地
图片尺寸740x773
酒店平面规划
图片尺寸1280x1708
和乔丽致酒店式公寓
图片尺寸3543x3543
酒店式公寓,户型这样玩儿了.
图片尺寸662x1279
良志精装酒店式轻奢风公寓可月付配置齐近名城广场体育公园万达
图片尺寸696x522
平面布置图横琴酒店式公寓
图片尺寸3917x2484
酒店式公寓户型这样玩最有范
图片尺寸600x1289
绿地铂瑞酒店式公寓楼盘详情绿地铂瑞酒店式公寓房价户型容积率小区
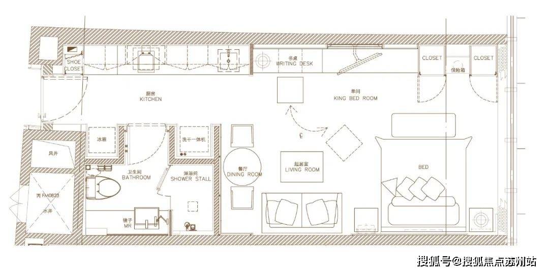
图片尺寸1080x538
嘉兴云澜湾云上v空间位置在哪里云澜湾云上v空间户型怎么样
图片尺寸2000x2500
【已回复】单人自住三十几平方的酒店式公寓_平面研讨_室内设计联盟
图片尺寸4200x2970
四海逸家酒店式公寓平面图2图片-null公寓式酒店-大众点评网
图片尺寸564x633
酒店式公寓户型这样玩最有范
图片尺寸500x551
金奥诺阁雅酒店公寓|为什么更多人选择投资公寓?
图片尺寸1080x1172
酒店式单身公寓小套房平面 13稿方案.#室内设计 #户型优化 - 抖音
图片尺寸1440x2660
泰国普吉u2 mini酒店式公寓开盘预售即享88折内购价
图片尺寸1080x800
雷雨明设计 | 西安金磐酒店
图片尺寸1500x843
文华东方设计关于酒店公寓的设计创意理念分享_the_and_also
图片尺寸500x290