酒店雨棚尺寸

酒店大雨棚节点大样图
图片尺寸400x320
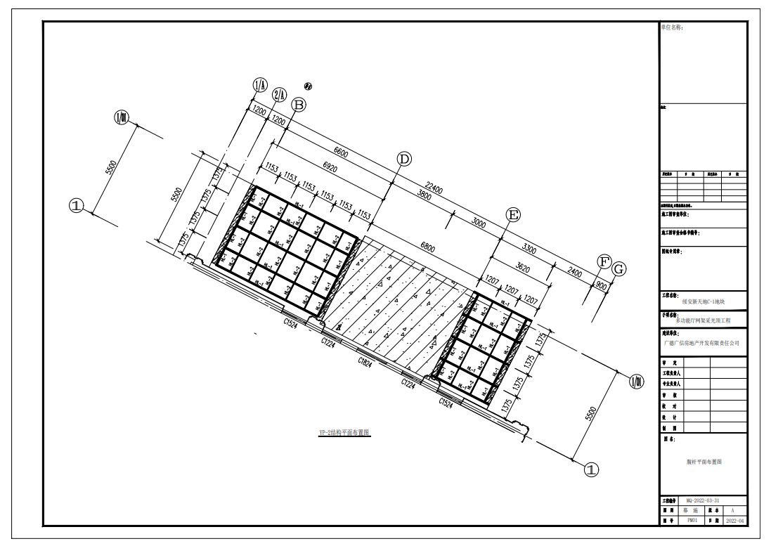
辽宁省沈阳市某酒店雨棚钢结构设计
图片尺寸1102x774
玻璃雨棚剖面
图片尺寸1600x1130
辽宁省沈阳市某酒店雨棚钢结构设计
图片尺寸1097x777
辽宁省沈阳市某酒店雨棚钢结构设计
图片尺寸1098x779
🌧️简易彩钢瓦雨棚设计草图📐
图片尺寸1080x1591
钢结构树脂瓦雨棚详图cad图纸
图片尺寸1350x1080
琼中门廊耐力板雨棚定制,正在装修庭院,店面?海口嘉美专业雨棚
图片尺寸1080x1661
透明雨棚定制 户外庭院家用阳台防雨蓬雨搭 耐力板厂家 静音车棚
图片尺寸750x873
铝合金雨棚户外防雨防晒遮阳棚阳台庭院别墅家用定制立柱款遮阳棚
图片尺寸1200x1830
图片尺寸1570x785
大楼入口钢结构悬挑雨棚点支式玻璃雨篷轻钢玻璃雨篷cad施工图
图片尺寸2268x2268
c雨棚详情
图片尺寸750x947
c雨棚详情
图片尺寸750x926
雨棚厂家 #尺寸根据客户空间来定制 #电动伸缩雨棚 根据甲
图片尺寸1170x2532
武汉新洲 尺寸定做 伸缩雨棚 移动遮阳雨篷 移动推拉蓬
图片尺寸750x750
花园洋房铝合金雨棚户外耐力板防雨棚阳台庭院阳光棚门上遮雨蓬
图片尺寸750x1161
户外帐篷遮阳篷婚礼庆影楼展销欧式篷房车展营地餐饮遮阳遮雨棚篷
图片尺寸2480x3840
型钢雨棚剖面这两条线表示什么呢图集07j501没有标注
图片尺寸1426x735
一种雨棚的制作方法
图片尺寸1000x871