酒柜厚度

附尺寸酒柜如何设计高度厚度长度多少合适
图片尺寸1080x1439
收纳率超高的酒柜尺寸设计合集
图片尺寸1080x969
9款新中式餐边酒柜
图片尺寸1080x1438
酒柜尺寸比列 酒柜尺寸比列分布!
图片尺寸1280x1280
酒柜 吧台 间厅柜烤漆 门厅柜 玄关柜 时尚吧桌 客厅家具 隔断188
图片尺寸750x895
酒柜餐边柜设计参考
图片尺寸1080x894
酒柜隔断柜客厅玄关柜现代简约厅柜餐厅玻璃小酒柜玄关欧式家用
图片尺寸750x1400
靠墙轻奢餐边柜现代简约客厅储物柜高柜酒柜一 长80厚度40高度200亮灰
图片尺寸800x800
海尔haier恒温红酒柜茶叶柜实木葡萄酒柜恒温恒湿榉木酒架led显示压缩
图片尺寸790x620
几款酒柜造型及具体尺寸喜欢的滴滴
图片尺寸1080x1440
12款定制高端酒柜尺寸大公开75赶紧收藏 12款定制高端酒柜尺寸大
图片尺寸961x1280
酒柜靠墙玻璃柜现代简约茶色玻璃酒柜靠墙客厅酒柜现代简约餐边柜酒柜
图片尺寸790x1061
家用酒柜高度尺寸多少比较合适?
图片尺寸600x355
酒柜尺寸来了及价格
图片尺寸1080x774
一般酒柜深度尺寸的简单介绍
图片尺寸500x377
酒柜一定要带玻璃才能出的高级感
图片尺寸1080x1439
博世(bosch) ktw18v80ti 135升红酒柜葡萄酒柜43支装酒柜恒温酒柜
图片尺寸990x914
铁艺落地酒柜酒吧餐厅隔断酒架葡萄酒红酒收纳展示架置物架酒杯架
图片尺寸750x599
大方,让你倍有面子|收纳|柜门|抽屉|餐区|酒柜|电视背景墙_网易订阅
图片尺寸660x847
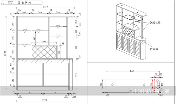
酒柜尺寸具体多少
图片尺寸500x469